Retour à la liste

EXCLUSIVITE - 2 pièces - Chateau d'Azur

La Rousse - Saint Roman / Château d'Azur

contacter l'agence Monte-Carlo Transactions

Exclusivité

Vente

réf MCT002524-3

Caractéristiques

Prix de vente3 950 000 €

Type de bienAppartement

Nb de pièces2

Chambre(s)1

Salle(s) de bain1

Superf. totale60 m²

Étage3

Télécharger en PDF

Description

Situé au sein du quartier Larousse Saint Roman, cet appartement a un emplacement stratégique proche des plages, des restaurants et commerces.

Situé dans le quartier La Rousse, cet appartement se trouve dans une résidence de standing sécurisée, avec un service de conciergerie 24h/24.
L'immeuble bénéficie de deux entrées permettant d'accéder à la plage du Larvotto et au Grimaldi Forum par l’entrée du bas. Toutes les commodités sont accessibles par le haut de la résidence, par le boulevard d'Italie.
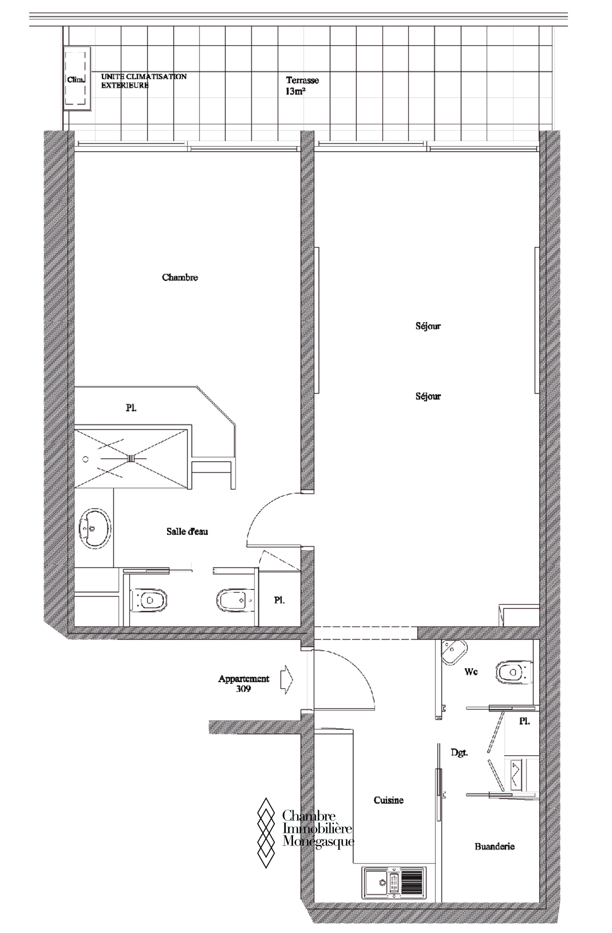
Cet appartement 2 pièces se compose d'une entrée, d'un séjour avec cuisine ouverte et entièrement équipée, une buanderie, une toilette invitée, une chambre avec salle de douche et placards. Une belle terrasse avec aperçu mer et une cave.
L’appartement est loué 5 065 € / mois + charges jusqu’au 15 Octobre 2026.

Monte-Carlo Transactions

T. +377 97 70 85 05 info@montecarlotransactions.com http://www.montecarlotransactions.com Voir tous les biens

Galerie Photos

Ce document ne fait partie d'aucune offre ou contrat. Toutes mesures, surfaces et distances sont approximatives. Le descriptif et les plans ne sont donnés qu'à titre indicatif et leur exactitude n'est pas garantie. Les photographies ne montrent que certaines parties de la propriété. L'offre est valable sauf en cas de vente, retrait de vente, changement de prix ou d'autres conditions, sans préalable.