Retour à la liste

AMBASSADOR

Monte-Carlo / Ambassador

contacter l'agence AFIM SAM

Vente

réf 517V15949A

Caractéristiques

Prix de vente4 140 000 €

Type de bienAppartement

Nb de pièces4

Salle(s) de bain1

Superf. totale123 m²

Superf. terrasse7 m²

Télécharger en PDF

Description

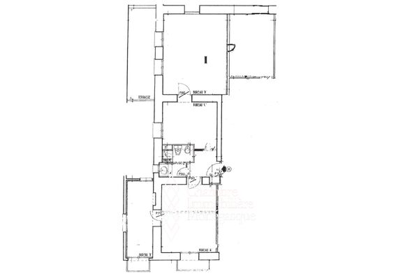
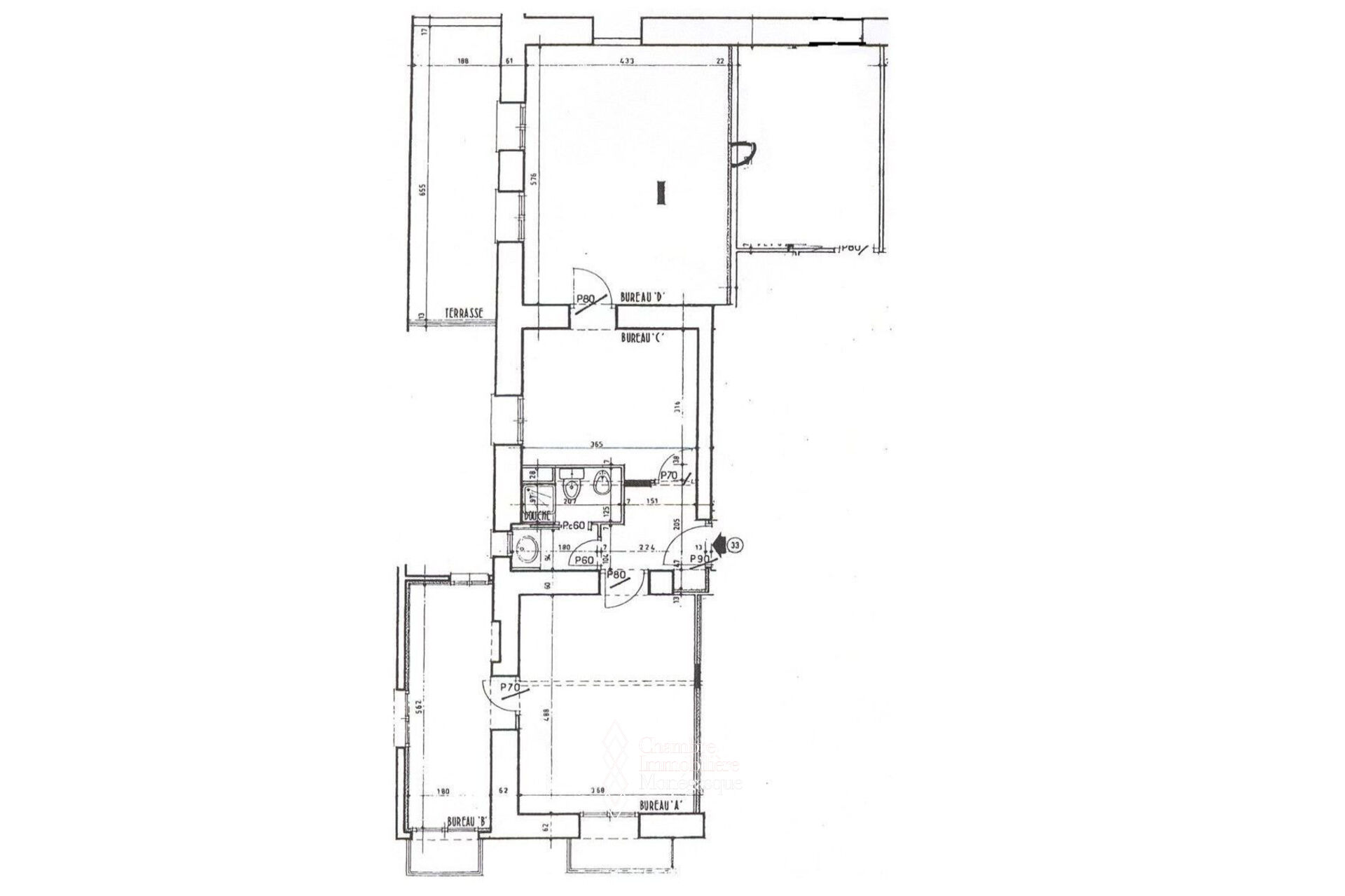
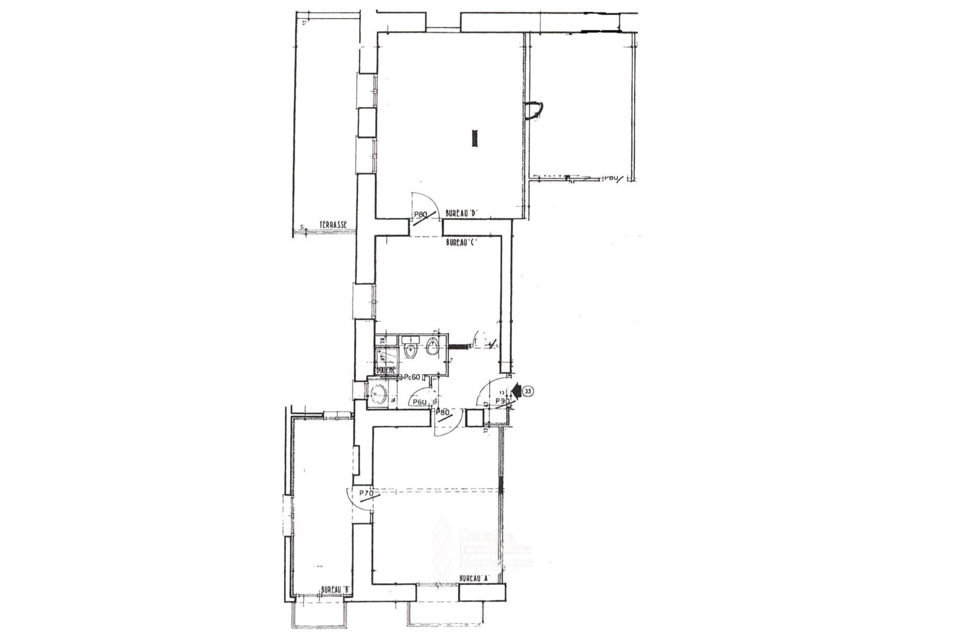
4 pièces actuellement loué en bureau, dans un immeuble bourgeois, proche de toutes commodités, situé sur le boulevard des Moulins, quartier de Monte Carlo, à quelques pas du Casino et de ses jardins.
Il dispose d'une surface totale de 123 m² dont 116 m² habitable et une terrasse de 7 m².
Description : 4 pièces et une 1 pièce sécurisée avec porte blindée, une salle de toilette avec douche, 2 W.C. et lavabo.
Possibilité de transformer à usage d'habitation. Libre rapidement.

AFIM SAM

T. +377 97 97 87 87 afim@afim.mc http://www.afim.mc Voir tous les biens

Galerie Photos

Ce document ne fait partie d'aucune offre ou contrat. Toutes mesures, surfaces et distances sont approximatives. Le descriptif et les plans ne sont donnés qu'à titre indicatif et leur exactitude n'est pas garantie. Les photographies ne montrent que certaines parties de la propriété. L'offre est valable sauf en cas de vente, retrait de vente, changement de prix ou d'autres conditions, sans préalable.