Retour à la liste

3 Pièces à Rénover à Vendre – Monte-Carlo

Monte-Carlo / Victoria

Caractéristiques

Prix de vente6 400 000 €

Type de bienAppartement

Nb de pièces3

Chambre(s)2

Salle(s) de bain2

Parking(s)1

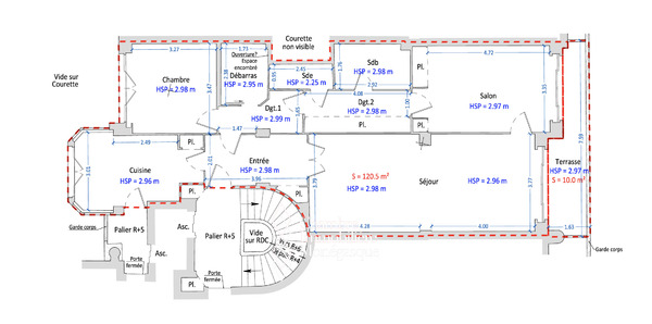
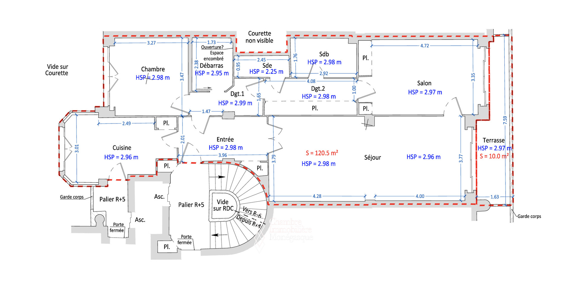
Superf. totale130.50 m²

Superf. terrasse10 m²

Télécharger en PDF

Description

Découvrez une opportunité immobilière exceptionnelle au cœur du prestigieux quartier de Monte-Carlo.

Découvrez une opportunité immobilière exceptionnelle dans le prestigieux quartier de Monte-Carlo. Ce superbe appartement de trois pièces, situé au sein de la résidence renommée Le Victoria, allie élégance historique et fort potentiel de rénovation. Veuillez noter que l'appartement nécessite une rénovation complète, offrant une toile blanche idéale pour créer un espace de vie sur mesure. Les plans présentés sont des projections architecturales destinées à illustrer le potentiel de transformation après rénovation.
Installé dans un immeuble bourgeois de standing avec service de conciergerie et des parties communes somptueuses, ce bien d’exception bénéficie d’un emplacement privilégié à proximité des boutiques de luxe, des restaurants étoilés, de la célèbre Place du Casino et de toutes les commodités essentielles.
Avec une surface totale de 130,50 m², dont 120,50 m² habitables et une terrasse privée de 10 m², l’appartement offre de beaux volumes et des plafonds atteignant jusqu’à trois mètres de hauteur. Il se compose actuellement d’un séjour lumineux avec accès à la terrasse, d’une cuisine indépendante, d’une chambre principale avec accès direct à la terrasse, d’une seconde chambre, d’une salle de bains, d’une salle de douche, d’un débarras et de nombreux rangements intégrés. Une place de parking et une cave complètent ce bien rare.
Situé au cinquième étage, l’appartement profite d’une belle luminosité naturelle et d’une atmosphère élégante. Proposé au prix de 6 900 000 €, ce bien représente une opportunité d’investissement remarquable. Grâce à son emplacement exceptionnel, son architecture intemporelle et son fort potentiel de modernisation, cet appartement de trois pièces à la Résidence Le Victoria est le choix idéal pour les acheteurs exigeants à la recherche d’un bien prestigieux ou d’un actif immobilier de grande valeur à Monte-Carlo.
Pour plus d’informations ou pour organiser une visite privée, contactez-nous.

Powers Properties

T. +377 92 05 23 23 contact@powers.mc https://www.powersproperties.mc/ Voir tous les biens

Galerie Photos

Ce document ne fait partie d'aucune offre ou contrat. Toutes mesures, surfaces et distances sont approximatives. Le descriptif et les plans ne sont donnés qu'à titre indicatif et leur exactitude n'est pas garantie. Les photographies ne montrent que certaines parties de la propriété. L'offre est valable sauf en cas de vente, retrait de vente, changement de prix ou d'autres conditions, sans préalable.