Retour à la liste

Bureau Port de Fontvieille

Fontvieille / Le Cimabue

contacter l'agence Agence de la Gare

Location

réf L2304202501

Caractéristiques

Montant du loyer2 950 € / mois

Montant des charges550 € / mois

Type de bienBureaux

Nb de pièces1

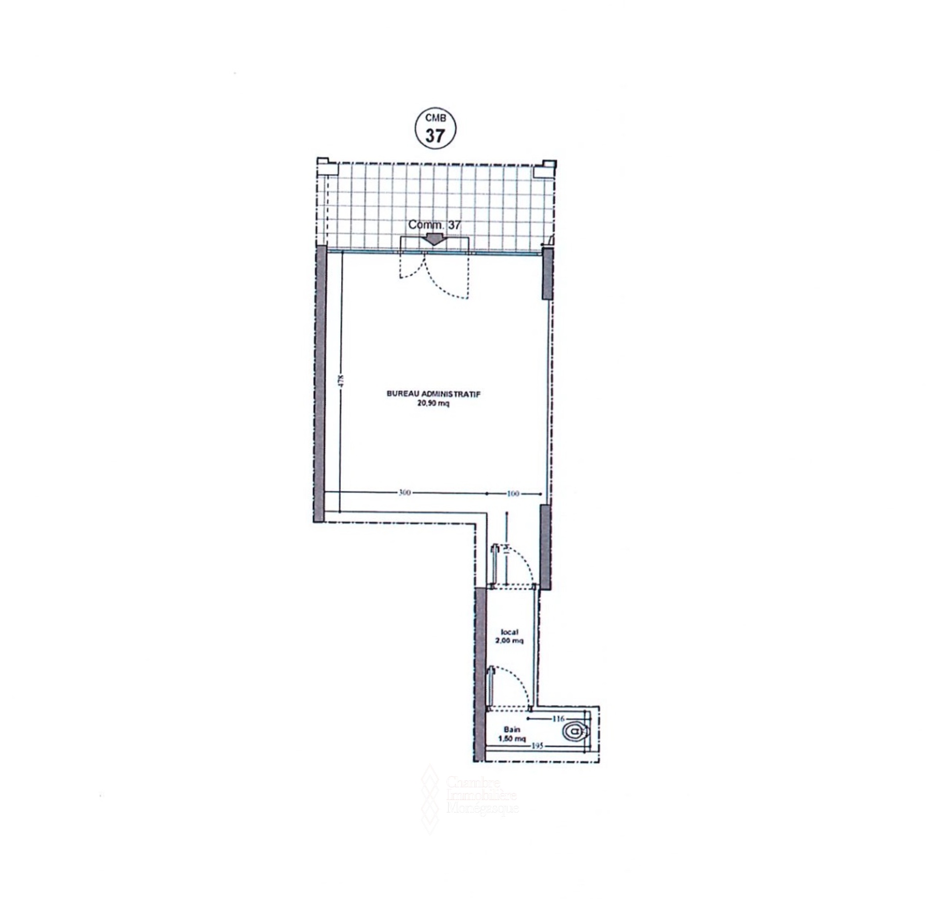
Superf. totale24 m²

Télécharger en PDF

Description

En plein coeur du quartier de Fontvieille, en rez-de-chaussée d'une résidence de standing avec post de garde 24h/7, bureau administratif/local commercial avec belle vitrines.

Proche de toutes les commodités ce beau bureau entièrement rénové se compose actuellement de :
- Une entrée
- Un espace de travail
- Un water Closet
- Grande vitrine
- Climatisation réversible

 

Agence de la Gare

T. +377 93 30 22 36 info@agencegaremonaco.com http://www.agencegaremonaco.com/ Voir tous les biens

Galerie Photos

Ce document ne fait partie d'aucune offre ou contrat. Toutes mesures, surfaces et distances sont approximatives. Le descriptif et les plans ne sont donnés qu'à titre indicatif et leur exactitude n'est pas garantie. Les photographies ne montrent que certaines parties de la propriété. L'offre est valable sauf en cas de vente, retrait de vente, changement de prix ou d'autres conditions, sans préalable.