Retour à la liste

FONTVIEILLE - FOND DE COMMERCE 290m²

Fontvieille / Le Grand Large

Caractéristiques

Prix de vente500 000 €

Type de bienCession de droit au bail

Superf. totale290 m²

Étage1

Télécharger en PDF

Description

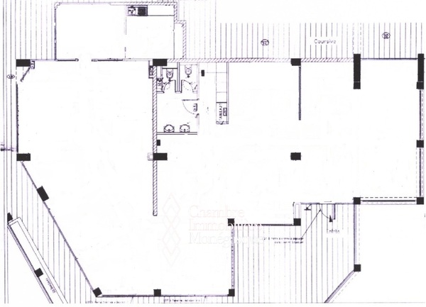
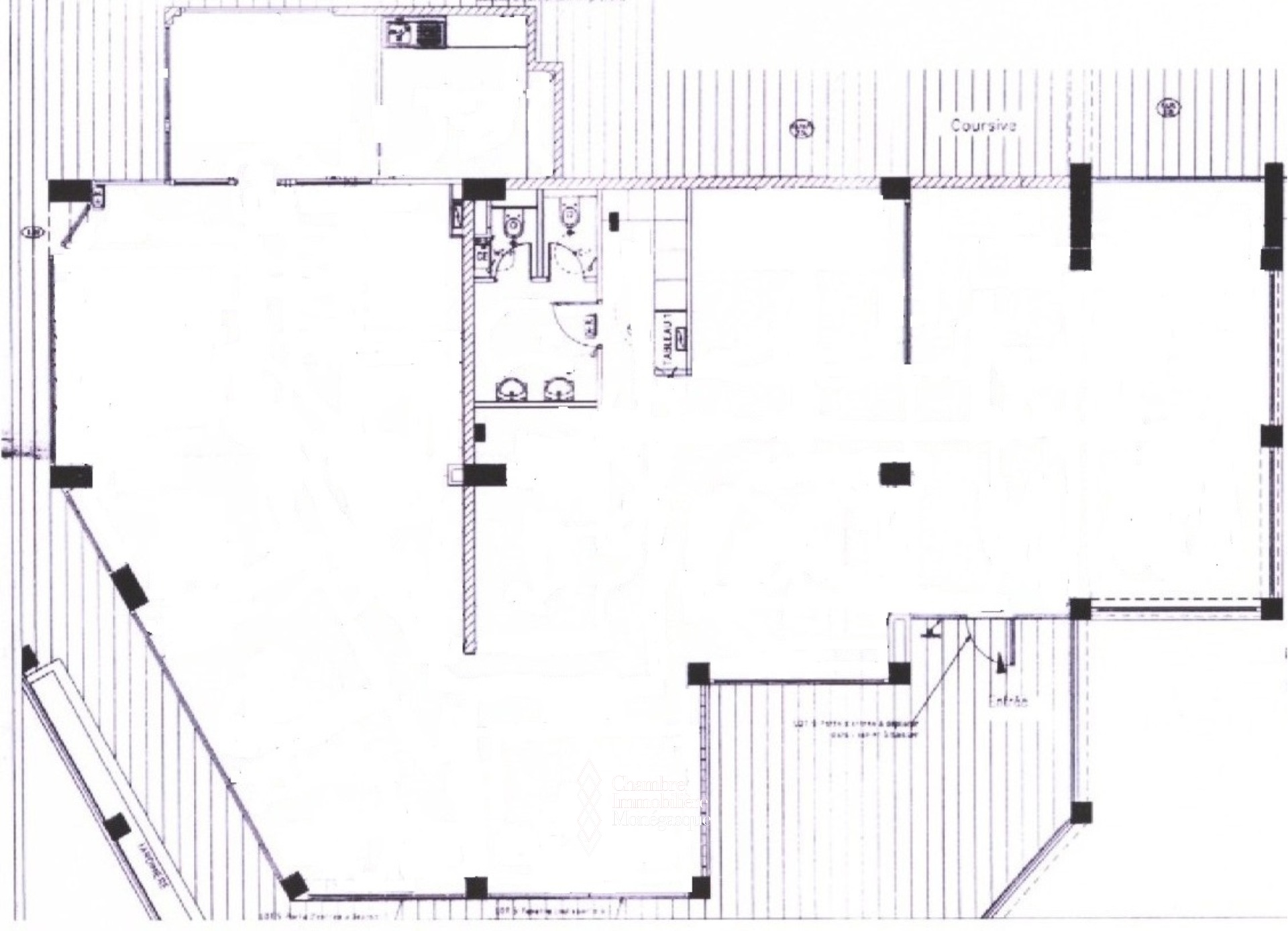
A Fontvieille local de 290 m²  (partiellement meublés et équipés) face à la mer. Très lumineux
Ce local se compose: d'un open space, grande salle de réunion ou bureau de direction,  plusieurs bureaux, un local archives, un local informatique, un dégagement, wc (homme et femme) une cuisine entièrement équipée, espace détente.  L'ensemble du local est équipé de climatisation
2 parkings complètent ce bien 
Le loyer mensuel est de 25.000 € + charges 
 

La Monégasque Immobilier

T. +377 92 05 28 80 contact@lamonegasqueimmobilier.mc http://lamonegasqueimmobilier.mc Voir tous les biens

Galerie Photos

Ce document ne fait partie d'aucune offre ou contrat. Toutes mesures, surfaces et distances sont approximatives. Le descriptif et les plans ne sont donnés qu'à titre indicatif et leur exactitude n'est pas garantie. Les photographies ne montrent que certaines parties de la propriété. L'offre est valable sauf en cas de vente, retrait de vente, changement de prix ou d'autres conditions, sans préalable.