Retour à la liste

Eden Star - Joli studio en étage élevé !

Fontvieille / Eden Star

contacter l'agence Agence de la Gare

Exclusivité

Vente

réf V2110202501

Caractéristiques

Prix de vente2 200 000 €

Type de bienAppartement

Nb de pièces1

Salle(s) de bain1

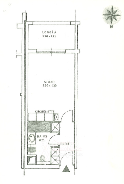
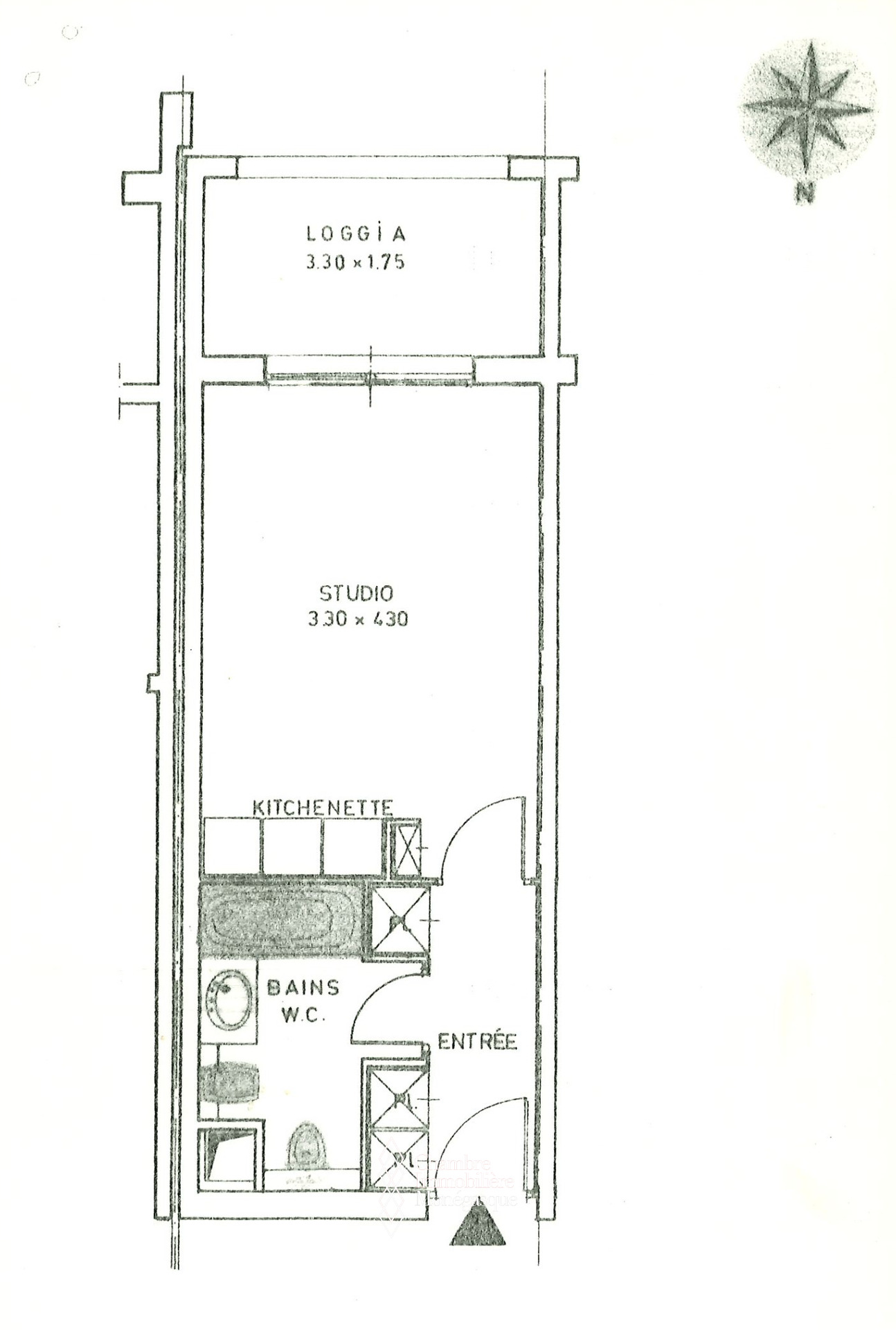
Superf. totale39 m²

Superf. terrasse7.50 m²

Étage8

Télécharger en PDF

Description

Dans un immeuble de très bon standing avec gardien, poste de garde 24/7, et piscine, très joli studio jouissant d'un environnement exceptionnel ! Au calme absolu avec sa vue sur les jardins, cet appartement est très agréable ! Vendu avec une cave et un double box dans l'immeuble ! Coup de coeur assuré !

Dans le quartier résidentiel de fontvieille, proche de toutes les commodités, (jardins, port, restaurants, centre commercial de carrefour, école, crèche, arret de bus...) ce studio en très bon état se compose de :
- Une entrée avec placard
- Une pièce de vie avec kitchenette équipée
- Une loggia 
- Une salle de bain avec WC
- Un double box dans l'immeuble
- Une cave dans l'immeuble
- L'appartement est climatisé

Agence de la Gare

T. +377 93 30 22 36 info@agencegaremonaco.com http://www.agencegaremonaco.com/ Voir tous les biens

Galerie Photos

Ce document ne fait partie d'aucune offre ou contrat. Toutes mesures, surfaces et distances sont approximatives. Le descriptif et les plans ne sont donnés qu'à titre indicatif et leur exactitude n'est pas garantie. Les photographies ne montrent que certaines parties de la propriété. L'offre est valable sauf en cas de vente, retrait de vente, changement de prix ou d'autres conditions, sans préalable.