Retour à la liste

FORMIDABLE PENTHOUSE - ADRESSE IDÉALE !

Carré d'or / Villa San Carlo

contacter l'agence Caroline Olds Real Estate

Vente

réf RD_VILLA_SAN_CARLO.P

Caractéristiques

Prix de vente16 800 000 €

Type de bienAppartement

Nb de pièces4

Chambre(s)2

Salle(s) de bain2

Parking(s)1

Superf. totale295 m²

Superf. terrasse150 m²

Étage5

Télécharger en PDF

Description

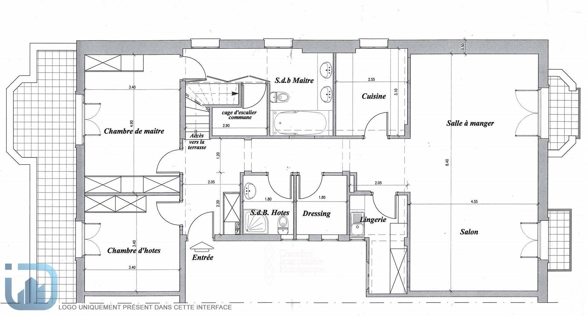
Nous avons le plaisir de vous présenter un penthouse d’exception avec une splendide vue mer panoramique, situé dans un bel immeuble bourgeois de l’Avenue de Grande Bretagne et tout proche du Centre Commercial Métropole, ainsi que des boutiques et restaurants du Boulevard des Moulins. Ce luxueux penthouse a été entièrement rénové selon les normes les plus élevées et est composé d’un hall d’entrée, d’un salon, d’une salle à manger, d’une cuisine, de 2 chambres, de 2 salles de bains, d’un bureau, d’une terrasse sur le toit avec une pergola, d’une cuisine d’été.  L’appartement est vendu avec une place de parking et une cave.

Penthouse d’exception avec une splendide vue panoramique sur la mer, situé dans un bel immeuble bourgeois de l’avenue de Grande Bretagne et très proche du centre commercial Métropole, ainsi que des boutiques et restaurants du boulevard des Moulins. Ce luxueux penthouse a été entièrement rénové selon les normes les plus élevées et est composé d’un hall d’entrée, d’un salon, d’une salle à manger, d’une cuisine, de 2 chambres, de 2 salles de bains, d’un bureau, d’une terrasse sur le toit avec une pergola, d’une cuisine d’été. L’appartement est vendu avec une place de parking et une cave.

Caroline Olds Real Estate

T. +377 93 25 86 66 caroline@carolineolds.com https://www.carolineolds.com/ Voir tous les biens

Galerie Photos

Ce document ne fait partie d'aucune offre ou contrat. Toutes mesures, surfaces et distances sont approximatives. Le descriptif et les plans ne sont donnés qu'à titre indicatif et leur exactitude n'est pas garantie. Les photographies ne montrent que certaines parties de la propriété. L'offre est valable sauf en cas de vente, retrait de vente, changement de prix ou d'autres conditions, sans préalable.