Retour à la liste

MONACO CARRÉ D'OR 2 PIECES RENOVE MEUBLE MIXTE CAVE

Carré d'or / Les Acanthes

contacter l'agence Blu Immobilier

Exclusivité

Vente

réf ACANTHES 2P 6B sans

Caractéristiques

Prix de vente3 900 000 €

Type de bienAppartement

Nb de pièces2

Superf. totale72 m²

Superf. terrasse14 m²

Étage6

Télécharger en PDF

Description

Les Acanthes est une résidence de standing situé dans le Carré d'Or de Monaco. Deux accès permettent de rejoindre les plages du Larvotto ou la Place du Casino (Amazonico, Café de Paris, Hotel de Paris), à pied en quelques minutes. D'un côté l'immeuble a son entrée principale, dotée d'une réception avec concierge, situéé à quelques pas face au Métropole Shopping Center. Quant à la sortie sur la rue du Portier, on se retrouve entre les fameux restaurants (Cipriani, Robuchon, Piazza, Zefferino, Pulcinella, Trinity). Le bâtiment bénéficie d'une climatisation chauffage réversible. Un atout rare : l'usage mixte de l'immeuble offre une flexibilité pour habitation ou bureau.

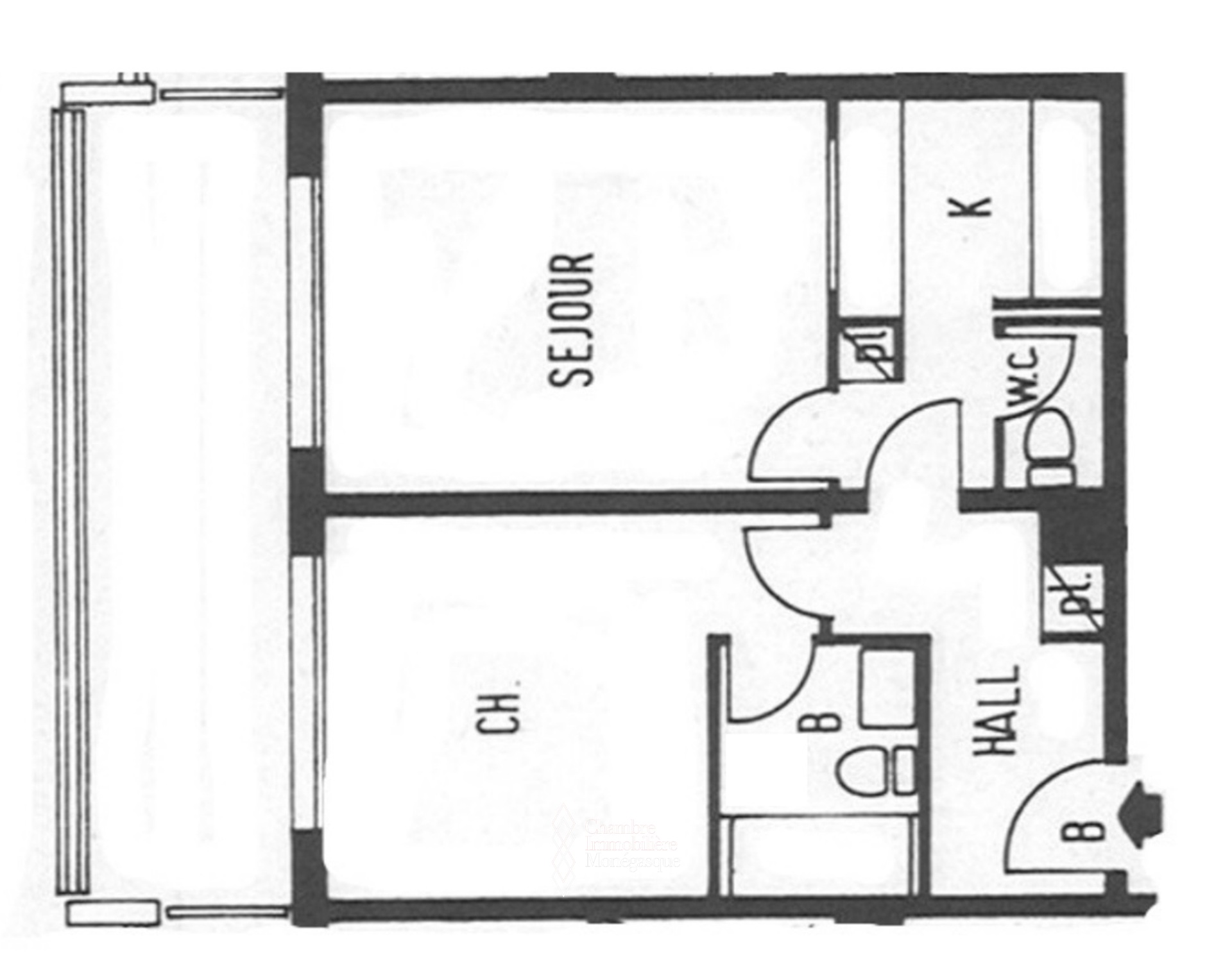
L'appartement 2 pièces très fonctionnel dispose d'une entrée avec placards, d'un salon, d'une cuisine indépendante équipée, d'un toilette invités, d'une chambre avec salle de douche ensuite, et d'un grand balcon filant accessible depuis les deux pièces. Les finitions soignées incluent du marbre au sol, du parquet sur le balcon et des portes en bois. De nombreux rangements sont intégrés. Rénové et meublé, prêt à vivre. Ce bien comprend également une cave numéro 251 au deuxième sous-sol et un parking numéro 114 au premier sous-sol. Ne manquez pas cette opportunité unique au cœur de Monaco.

Blu Immobilier

T. +33 6 80 86 18 23 blu@blu.mc https://www.blu.mc/ Voir tous les biens

Galerie Photos

Ce document ne fait partie d'aucune offre ou contrat. Toutes mesures, surfaces et distances sont approximatives. Le descriptif et les plans ne sont donnés qu'à titre indicatif et leur exactitude n'est pas garantie. Les photographies ne montrent que certaines parties de la propriété. L'offre est valable sauf en cas de vente, retrait de vente, changement de prix ou d'autres conditions, sans préalable.