Retour à la liste

Bureau au calme à Fontvieille

Fontvieille / Titien

contacter l'agence Viviani Champfleury Barco

Location

réf TIT - 714 - L - 05

Caractéristiques

Montant du loyer4 450 € / mois

Montant des charges500 € / mois

Type de bienBureaux

Salle(s) de bain1

Superf. totale63 m²

Télécharger en PDF

Description

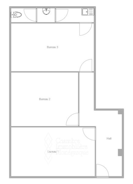
Dans le quartier du port de Fontvieille, ce grand bureau de 63m2 donnant sur les jardins de la résidence est un idéal espace de travail au calme

Le bureau est séparé en 3 espaces de travail par des cloisons vitrées. Une petite kitchenette avec un point d'eau et un espace pour un réfrigérateur se situe à l'arrière de l'ensemble.
Le loyer est soumis à la TVA.
Loyer : 4.450 € + 890 € TVA = 5.340€
Disponible immédiatement.

Viviani Champfleury Barco

T. +377 97 70 24 00 contact@vcb.mc http://www.vcb.mc Voir tous les biens

Galerie Photos

Ce document ne fait partie d'aucune offre ou contrat. Toutes mesures, surfaces et distances sont approximatives. Le descriptif et les plans ne sont donnés qu'à titre indicatif et leur exactitude n'est pas garantie. Les photographies ne montrent que certaines parties de la propriété. L'offre est valable sauf en cas de vente, retrait de vente, changement de prix ou d'autres conditions, sans préalable.