Retour à la liste

EXCLUSIVITE - VILLA UNIQUE DE STYLE BELLE ÉPOQUE

La Rousse - Saint Roman

contacter l'agence Lorenza von Stein Monaco

Exclusivité

Vente

réf VMC-1281

Caractéristiques

Prix de vente42 000 000 €

Type de bienVilla

Nb de pièces12

Chambre(s)5

Salle(s) de bain5

Parking(s)1

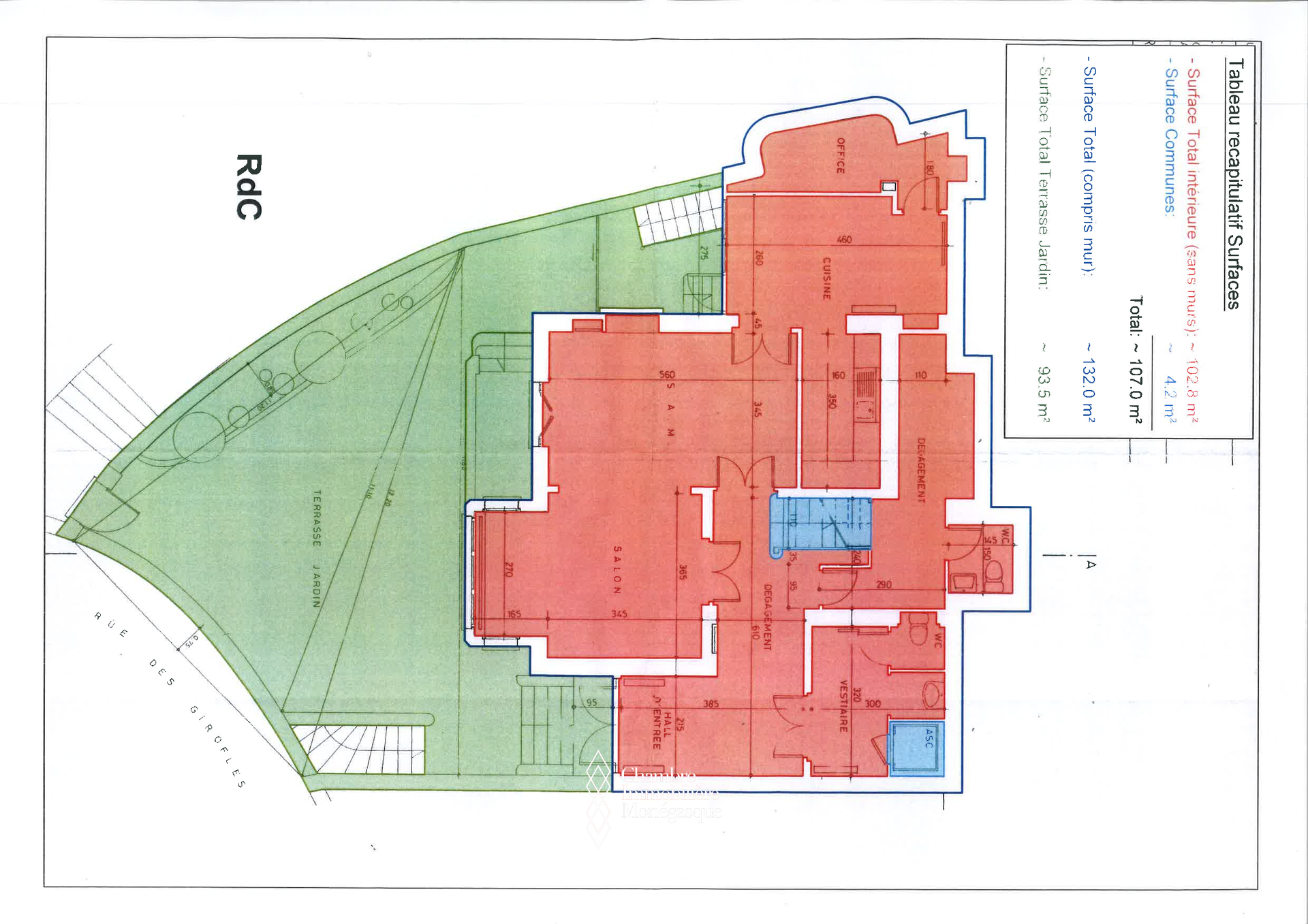
Superf. totale674 m²

Télécharger en PDF

Description

Dans l’un des quartiers les plus prisés de la Principauté de Monaco, à seulement quelques pas de la prestigieuse International School de Monaco, se trouve l’un des rares joyaux architecturaux de la Belle Époque : une villa privée indépendante qui incarne à la perfection tradition, prestige et qualité de vie. Cette résidence d’exception est un véritable trésor. Avec une surface généreuse de 675 m² répartis sur quatre étages élégants, cette villa reflète le style et le raffinement de la Belle Époque. La façade séduit par ses détails artistiques. À l’intérieur, la grandeur se poursuit : de hauts plafonds, de grandes fenêtres – dont certaines allant jusqu’au sol – ainsi que des matériaux nobles créent une atmosphère lumineuse et aérée. Des éléments historiques tels que les moulures en stuc, les parquets anciens ou encore les cheminées artistiques font revivre le charme d’antan – tout en invitant à intégrer une élégance contemporaine de manière harmonieuse. Actuellement, la villa comprend six chambres spacieuses et huit salles de bains entièrement équipées. De vastes espaces de vie et de réception permettent d’organiser des événements avec élégance, tout en offrant des lieux de retraite familiaux et un art de vivre au plus haut niveau. Un plan d’agrandissement approuvé pour un étage supplémentaire offre au futur propriétaire la possibilité de personnaliser la propriété selon ses envies. L’orientation plein sud garantit non seulement un ensoleillement optimal tout au long de la journée, mais également une vue panoramique imprenable sur Monaco et une vue spectaculaire sur la mer Méditerranée. Cette villa représente une opportunité unique d’acquérir un morceau d’histoire monégasque dans l’une des villes les plus sûres et les plus prestigieuses au monde.

La propriété est actuellement composée comme suit :
Au rez-de-chaussée : un majestueux hall d'entrée, un double séjour, une cuisine entièrement équipée et des toilettes pour les invités. Un ascenseur interne offre un accès direct au 1er niveau.
Au 1er niveau : 1 salon, 2 chambres, 2 salles de bains et 2 terrasses.
Les 2ème et 3ème niveaux sont actuellement aménagés (et loués) comme un appartement duplex séparé, composé comme suit :
Au 2ème niveau : 3 chambres, toutes avec leurs salles de bains respectives.  
Au 3ème niveau : 1 salon, une cuisine entièrement équipée, 1 bureau, 1 chambre à coucher avec salle de douche attenante.
La villa dispose de son propre garage et d'une cave.

Lorenza von Stein Monaco

T. +377 97 97 02 77 request@lvsmonaco.com http://www.lorenzavonstein.com Voir tous les biens

Galerie Photos

Ce document ne fait partie d'aucune offre ou contrat. Toutes mesures, surfaces et distances sont approximatives. Le descriptif et les plans ne sont donnés qu'à titre indicatif et leur exactitude n'est pas garantie. Les photographies ne montrent que certaines parties de la propriété. L'offre est valable sauf en cas de vente, retrait de vente, changement de prix ou d'autres conditions, sans préalable.