Retour à la liste

Granada: Appartement de 3 Pièces en Nue Propriété

Jardin exotique / Granada

contacter l'agence Westrope Real Estate

Exclusivité

Vente

réf Wvi003 Granada

Caractéristiques

Prix de vente5 990 000 €

Type de bienAppartement

Nb de pièces3

Chambre(s)2

Salle(s) de bain2

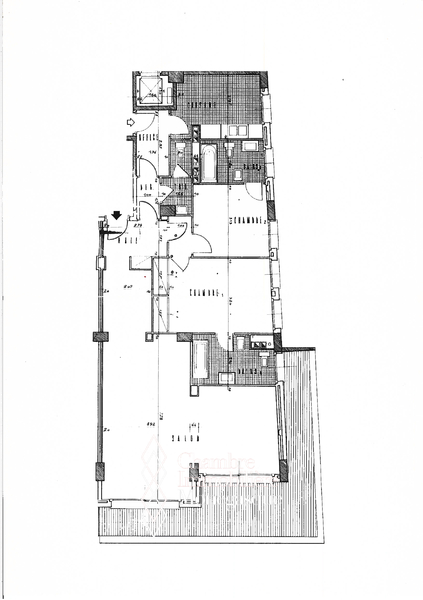
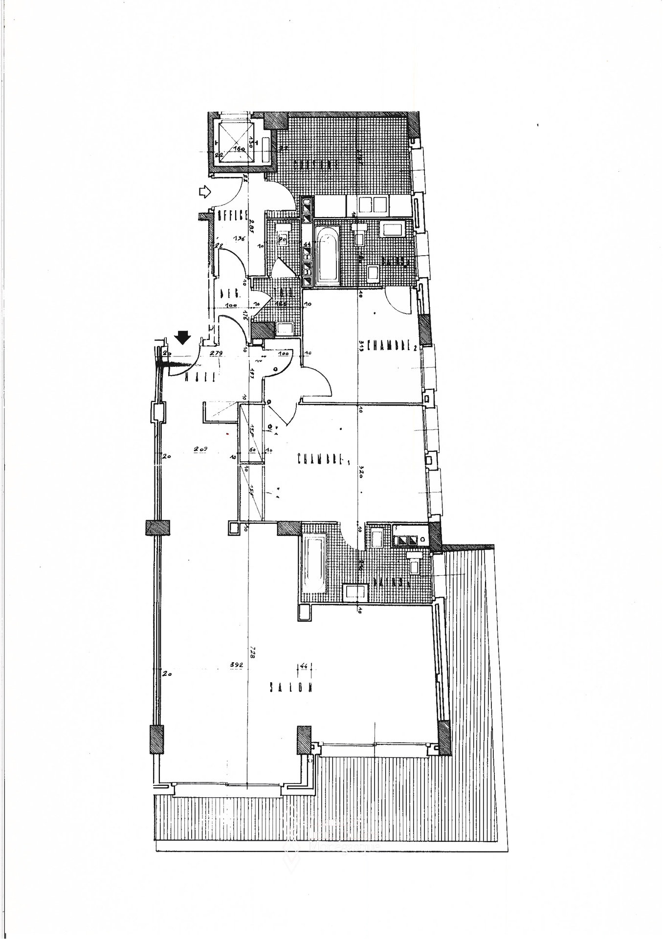
Superf. totale170 m²

Superf. terrasse25 m²

Étage9

Télécharger en PDF

Description

Le Granada est une résidence classée façade remarquable avec concierge 24/7 située sur le Boulevard de Belgique, quartier résidentiel calme très apprécié. Ce spacieux 3 pièces se compose d'un séjour et d'une salle-à-manger séparée ouvrant tous deux sur une spectaculaire terrasse avec vue panoramique, de deux chambres doubles avec salles de bains en suite, d'une grand cuisine et d'une toilette invité séparée. Actuellement habité par une tête féminine de 89 ans qui en a l'usufruit.

Le Granada est une résidence classée façade remarquable avec concierge 24/7 située sur le Boulevard de Belgique, quartier résidentiel calme très apprécié.
Ce spacieux 3 pièces se compose d'un séjour et d'une salle-à-manger séparée ouvrant tous deux sur une spectaculaire terrasse avec vue panoramique, de deux chambres doubles avec salles de bains en suite, d'une grand cuisine et d'une toilette invité séparée.
Actuellement habité par une tête féminine de 89 ans qui en a l'usufruit.

Westrope Real Estate

T. +377 93 50 67 99 contact@westrope-monaco.com http://www.westrope-monaco.com Voir tous les biens

Galerie Photos

Ce document ne fait partie d'aucune offre ou contrat. Toutes mesures, surfaces et distances sont approximatives. Le descriptif et les plans ne sont donnés qu'à titre indicatif et leur exactitude n'est pas garantie. Les photographies ne montrent que certaines parties de la propriété. L'offre est valable sauf en cas de vente, retrait de vente, changement de prix ou d'autres conditions, sans préalable.