Retour à la liste

Exclusivité - Carré d'Or - Métropole - Onglerie

Carré d'or / Le Metropole

contacter l'agence Viviani Champfleury Barco

Exclusivité

Vente

réf CO - MET - FDC2

Caractéristiques

Prix de vente495 000 €

Type de bienFonds de commerce

Superf. totale8 m²

Télécharger en PDF

Description

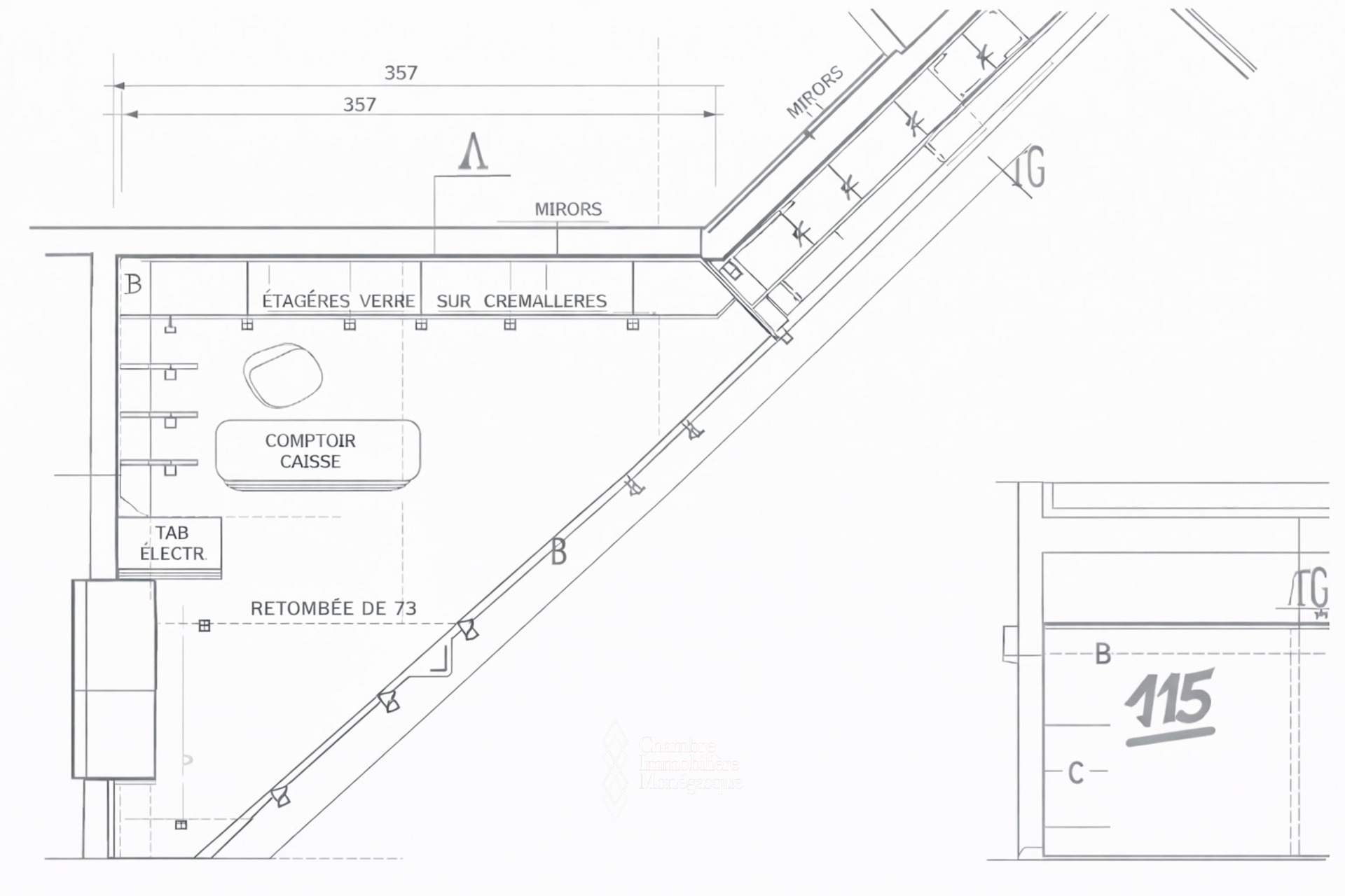
Excellent emplacement pour ce local situé dans la Galerie Commerciale du Métropole. L'onglerie dispose de 4 postes de travail.

Situé au cœur de la prestigieuse galerie commerciale du Métropole à Monaco, ce fonds de commerce d’onglerie bénéficie d’un emplacement à très forte visibilité, au sein d’un environnement haut de gamme et d’une clientèle locale et internationale.
Le local est parfaitement aménagé et exploité, offrant 4 postes de travail fonctionnels, permettant une activité immédiate sans investissement supplémentaire. L’espace est optimisé, lumineux et conforme aux normes en vigueur, idéal pour une reprise rapide.
Cette affaire représente une opportunité rare pour un professionnel souhaitant s’implanter ou développer son activité dans l’un des secteurs commerciaux les plus recherchés de la Principauté.
Dossier complet et informations complémentaires sur demande.
 

Viviani Champfleury Barco

T. +377 97 70 24 00 contact@vcb.mc http://www.vcb.mc Voir tous les biens

Galerie Photos

Ce document ne fait partie d'aucune offre ou contrat. Toutes mesures, surfaces et distances sont approximatives. Le descriptif et les plans ne sont donnés qu'à titre indicatif et leur exactitude n'est pas garantie. Les photographies ne montrent que certaines parties de la propriété. L'offre est valable sauf en cas de vente, retrait de vente, changement de prix ou d'autres conditions, sans préalable.