Retour à la liste

MEMMO CENTER - Fontvieille - 5 Pièces

Fontvieille / Memmo Center

Caractéristiques

Montant du loyer28 000 € / mois

Montant des charges4 000 € / mois

Type de bienAppartement

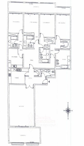
Nb de pièces5

Chambre(s)4

Salle(s) de bain4

Parking(s)2

Superf. totale305 m²

Superf. terrasse53 m²

Étage3

Télécharger en PDF

Description

Appartement traversant en parfait état, terrasse face mer, volumes généreux, avec parking et cave.

Au sein de la résidence Memmo Center, ensemble de standing avec conciergerie 24h/24, salle de fitness et services dédiés, cet appartement 5 pièces situé au 3ᵉ étage développe 252 m² habitables prolongés par 53 m² de terrasses. Traversant et en parfait état, il bénéficie d’une distribution fluide et d’une belle luminosité.
L’entrée dessert un séjour ouvrant sur une large terrasse face à la mer. La cuisine, entièrement équipée, s’inscrit dans le prolongement des espaces de vie. L’appartement comprend quatre chambres : deux disposent chacune de leur salle de bains et dressing, tandis que deux autres bénéficient également de leur propre salle de bains. L’ensemble des chambres s’ouvre sur une seconde terrasse. Une buanderie indépendante ainsi que des toilettes invités complètent l’agencement.
Une cave et deux places de parking sont disponibles au sein de l’immeuble. L’environnement immédiat permet un accès rapide au port de Fontvieille, au centre commercial, ainsi qu’aux restaurants et commodités du quartier.

Heritage Properties

T. +377 97 70 97 20 contact@heritageproperties.mc https://www.heritageproperties.mc Voir tous les biens

Galerie Photos

Ce document ne fait partie d'aucune offre ou contrat. Toutes mesures, surfaces et distances sont approximatives. Le descriptif et les plans ne sont donnés qu'à titre indicatif et leur exactitude n'est pas garantie. Les photographies ne montrent que certaines parties de la propriété. L'offre est valable sauf en cas de vente, retrait de vente, changement de prix ou d'autres conditions, sans préalable.