Retour à la liste

5 PIECES RENOVE - CHATEAU PERIGORD II

La Rousse - Saint Roman / Château Perigord II

Caractéristiques

Prix de vente5 500 000 €

Type de bienAppartement

Nb de pièces5

Chambre(s)4

Salle(s) de bain3

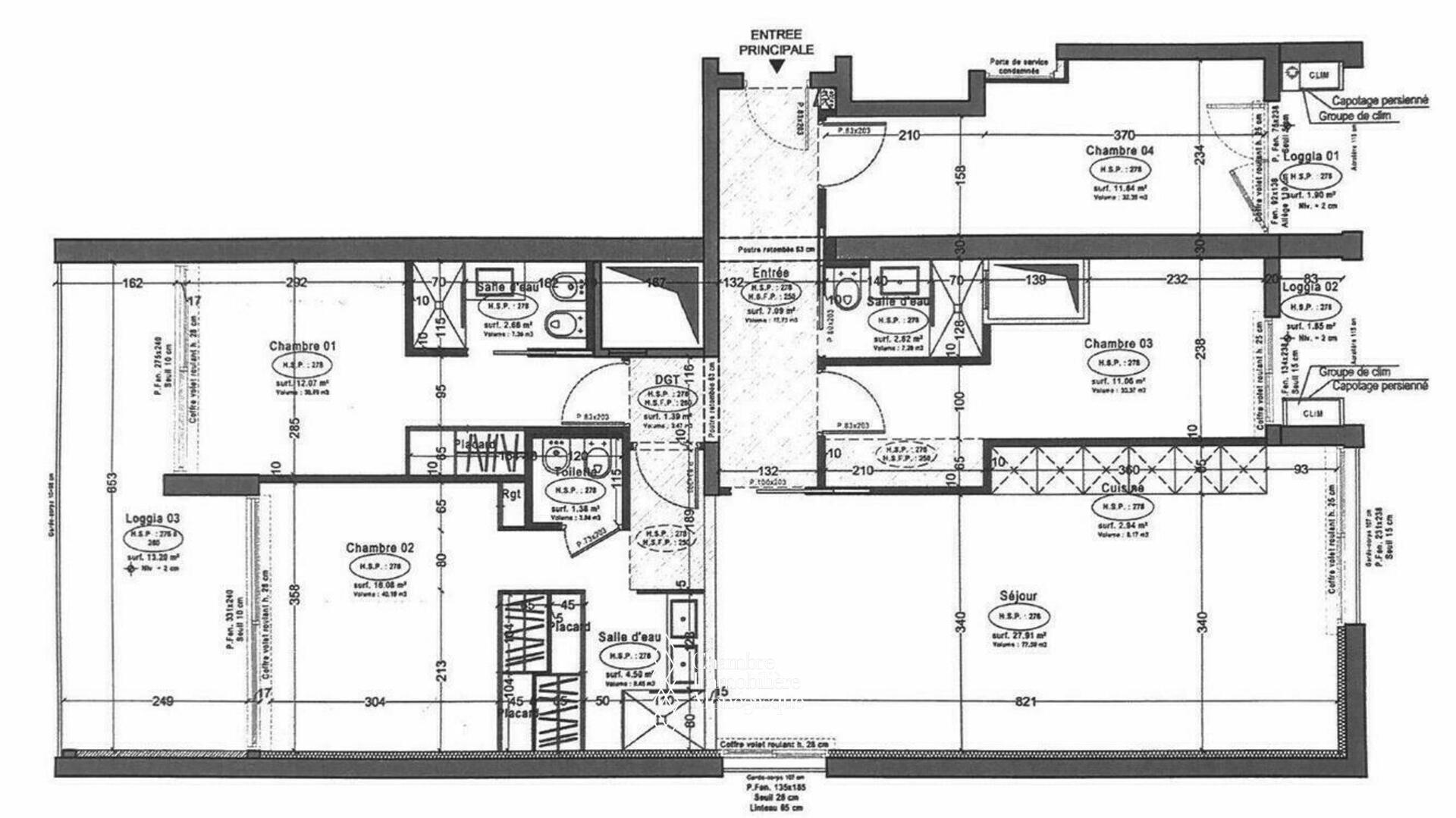
Superf. totale128 m²

Superf. terrasse18 m²

Étage11

Télécharger en PDF

Description

Situé au sein du Château Périgord II, une résidence recherchée de Monaco, ce 5 pièces récemment rénové offre un cadre de vie élégant à deux pas des plages. Proposé meublé, il combine fonctionnalité, confort et services de qualité.

Découvrez cet appartement de 5 pièces, récemment rénové, au sein de la prestigieuse résidence 'Château Périgord II'. L'immeuble bénéficie d’un concierge disponibles 24h/24, offrant un cadre de vie exclusif et sécurisé.
D’une superficie totale de 128 m², ce bien d’exception est proposé à la vente entièrement meublé et se compose comme suit :
- Un hall d’entrée menant à un spacieux séjour lumineux,

- Une cuisine américaine moderne, entièrement équipée, avec îlot central,

- Deux chambres en suite disposant chacune de leur propre salle de bain et dressing,

- Deux autres chambres,

- Une salle de douche indépendante,

- Des toilettes invités.

À cela s’ajoute une vaste terrasse offrant une agréable vue mer partielle, idéale pour profiter du climat méditerranéen.
(Possibilité de louer un emplacement de parking à proximité.)

Petrini Exclusive Real Estate Monaco

T. +377 92 00 16 00 contact@petrini.mc https://www.petrini.mc/ Voir tous les biens

Galerie Photos

Ce document ne fait partie d'aucune offre ou contrat. Toutes mesures, surfaces et distances sont approximatives. Le descriptif et les plans ne sont donnés qu'à titre indicatif et leur exactitude n'est pas garantie. Les photographies ne montrent que certaines parties de la propriété. L'offre est valable sauf en cas de vente, retrait de vente, changement de prix ou d'autres conditions, sans préalable.