Retour à la liste

STUDIO AVEC CAVE ET PARKING - BOTTICELLI - FONTVIEILLE

Fontvieille / Botticelli

contacter l'agence Agence Marchetti Monaco

Exclusivité

Location

réf L006

Caractéristiques

Montant du loyer3 200 € / mois

Montant des charges175 € / mois

Type de bienAppartement

Nb de pièces1

Salle(s) de bain1

Parking(s)1

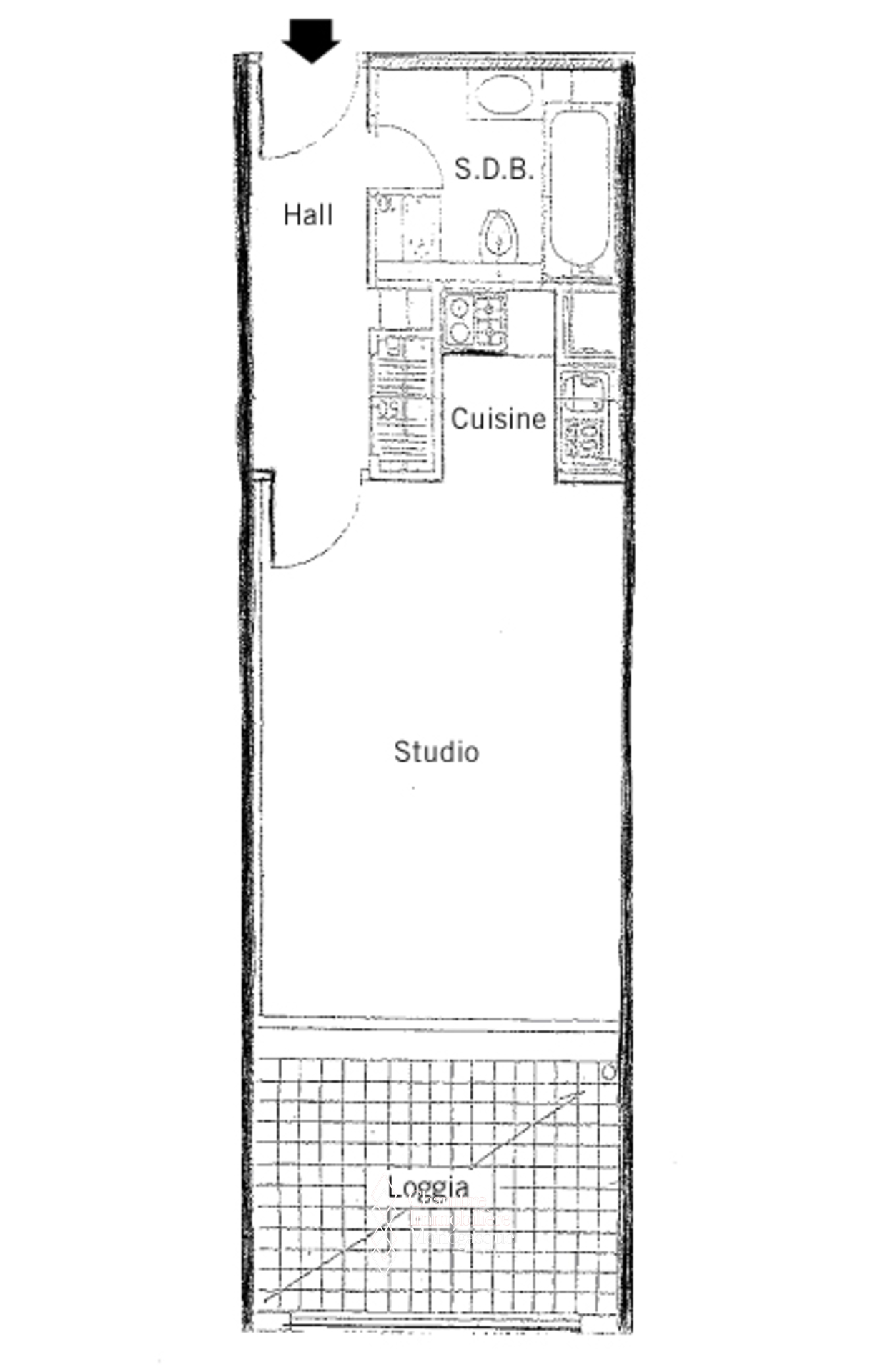
Superf. totale44 m²

Superf. terrasse11 m²

Télécharger en PDF

Description

Très beau Studio - Belle surface - proche de toutes commodités

Agréable studio très calme surplombant la placette de FONTVIEILLE, à proximité de tous commerces.
Salle de douche et kitchenette, Marbre vitrifié au sol, air conditionné. Petite échappée mer sur le port.
Cave et Parking.

Agence Marchetti Monaco

T. +377 93 30 24 78 contact@agencemarchetti.com https://www.agencemarchetti.com/ Voir tous les biens

Galerie Photos

Ce document ne fait partie d'aucune offre ou contrat. Toutes mesures, surfaces et distances sont approximatives. Le descriptif et les plans ne sont donnés qu'à titre indicatif et leur exactitude n'est pas garantie. Les photographies ne montrent que certaines parties de la propriété. L'offre est valable sauf en cas de vente, retrait de vente, changement de prix ou d'autres conditions, sans préalable.