Retour à la liste

Condamine / Villa Bambusi / Studio transformable en 2 pièces

Condamine / Villa Bambusi

contacter l'agence Mazza Immobilier

Exclusivité

Vente

réf MM120

Caractéristiques

Prix de vente1 190 000 €

Type de bienAppartement

Nb de pièces1

Superf. totale34 m²

Étage1

Télécharger en PDF

Description

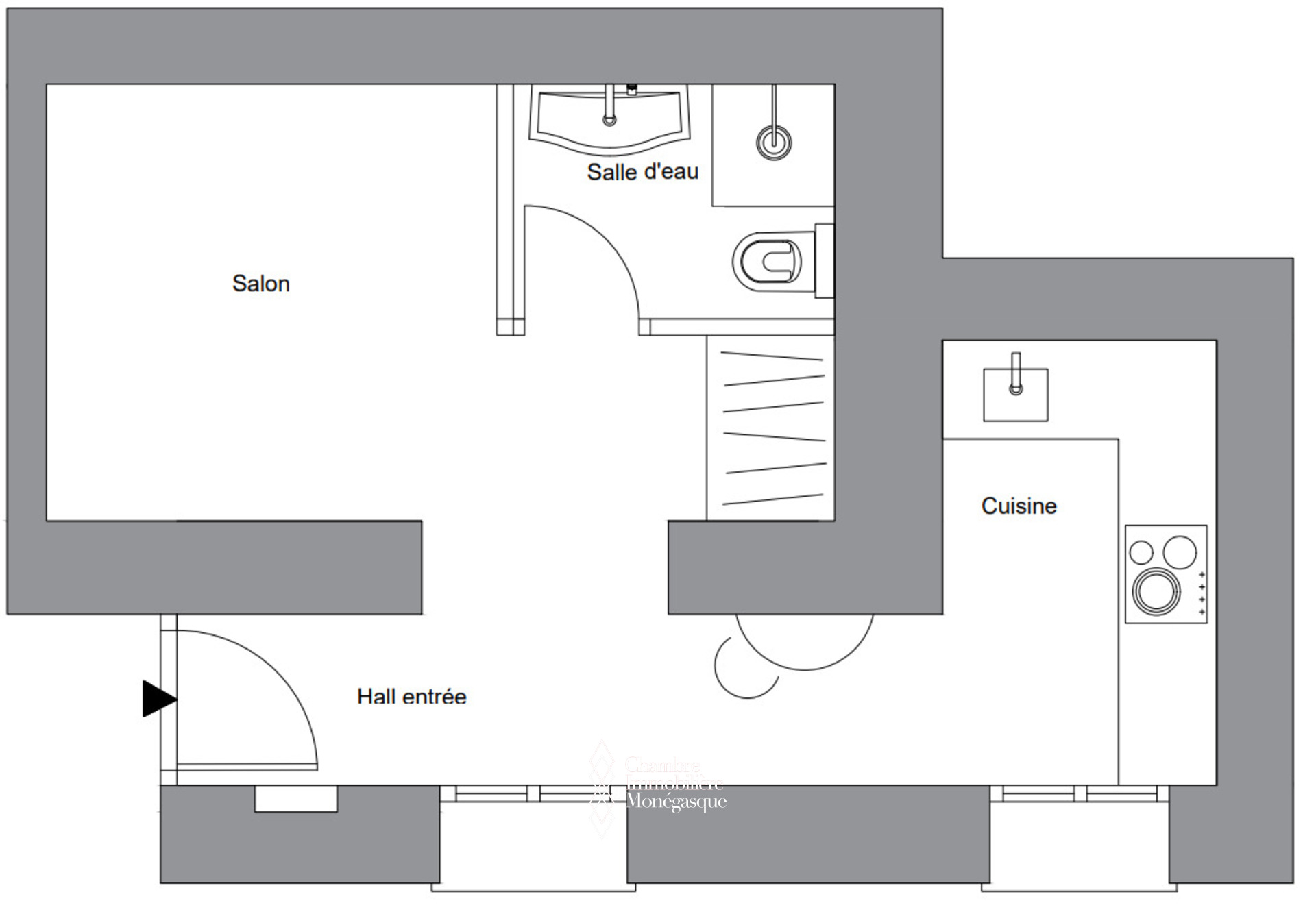
Beau potentiel de restructuration pour ce studio situé dans une copropriété au calme avec très peu de charges.
Il se compose d'une entrée, un séjour, une salle de douches spacieuse et une cuisine indépendante. 
Ce bien est soumis aux dispositions de la loi 1235.

Mazza Immobilier

T. +377 97 77 35 35 info@mazza-immobilier.com https://mazza-immobilier.com/ Voir tous les biens

Galerie Photos

Ce document ne fait partie d'aucune offre ou contrat. Toutes mesures, surfaces et distances sont approximatives. Le descriptif et les plans ne sont donnés qu'à titre indicatif et leur exactitude n'est pas garantie. Les photographies ne montrent que certaines parties de la propriété. L'offre est valable sauf en cas de vente, retrait de vente, changement de prix ou d'autres conditions, sans préalable.