Retour à la liste

UNIQUE LOCALISATION POUR CES BUREAUX PRESTIGIEUX

Carré d'or / Monte Carlo Palace

Caractéristiques

Prix de vente6 300 000 €

Type de bienBureaux

Nb de pièces3

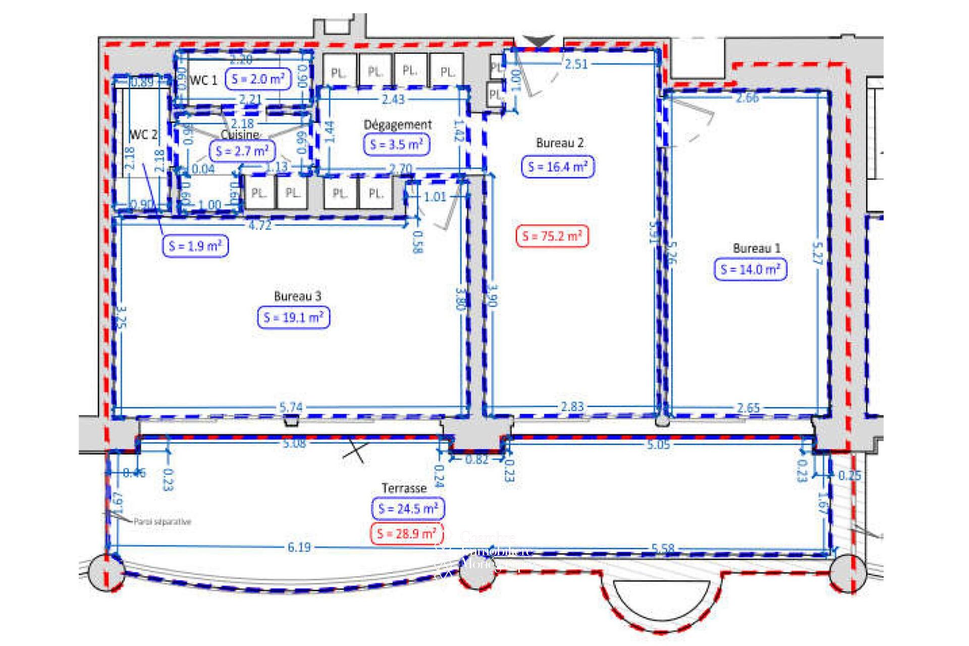
Superf. totale104 m²

Superf. terrasse29 m²

Télécharger en PDF

Description

Idéal emplacement pour ces bureaux situés dans un immeuble de luxe du Carré d'Or

Magnifiques bureaux rénovés dans un style contemporain situés en façade d'un immeuble prestigieux en plein Carré d'Or.
Ils sont composés de trois bureaux indépendants avec de nombreux placards, un coin cuisine, 2 WC indépendants et ouvrent sur une grande et lumineuse terrasse.
Possibilité de les annexer à des bureaux mitoyens.
Caves et Parkings en supplément.

Real Estate Monte Carlo

T. +377 93 50 60 70 info@realestatemontecarlo.mc https://www.realestatemontecarlo.mc Voir tous les biens

Galerie Photos

Ce document ne fait partie d'aucune offre ou contrat. Toutes mesures, surfaces et distances sont approximatives. Le descriptif et les plans ne sont donnés qu'à titre indicatif et leur exactitude n'est pas garantie. Les photographies ne montrent que certaines parties de la propriété. L'offre est valable sauf en cas de vente, retrait de vente, changement de prix ou d'autres conditions, sans préalable.