Retour à la liste

Bureau Duplex - Carré d'Or - Vitrines

Carré d'or / Park Palace

Caractéristiques

Montant du loyer9 500 € / mois

Montant des charges760 € / mois

Type de bienBureaux

Parking(s)1

Superf. totale167 m²

Télécharger en PDF

Description

En plein centre de la Principauté de Monaco, au cœur du Carré d'Or, à deux pas des boutiques les plus prestigieuses, ce bureaux sur deux étages est situé dans les galeries marchandes du Park Palace. Cette résidence offre un service de conciergerie 24/24.

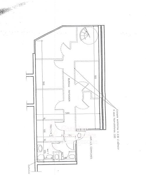
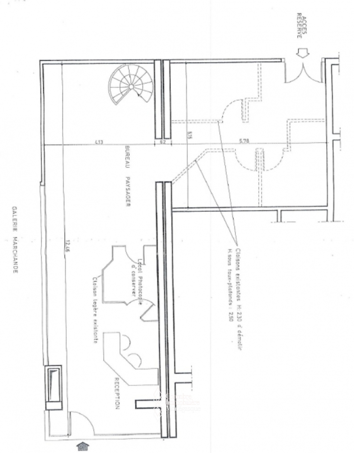
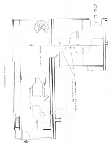
Bureau de 167m² répartis sur 2 étages, les rez-de-chaussée de 97m² dispose d'un coin réception, d'un local à photocopie et d'un grand espace pour le bureau, et le sous-sol de 70m² est agencé d'un espace vestiaire, d'un toilette homme, un toilette femme, un grand espace bureau et beaucoup de rangements.
1 parking complète ce bien. Possibilité de louer un emplacement de parking en supplément.
Le loyer est  soumis à la TVA

Groupe S.M.I.R.

T. +377 92 16 58 00 info@groupesmir.com http://www.groupesmir.com/ Voir tous les biens

Galerie Photos

Ce document ne fait partie d'aucune offre ou contrat. Toutes mesures, surfaces et distances sont approximatives. Le descriptif et les plans ne sont donnés qu'à titre indicatif et leur exactitude n'est pas garantie. Les photographies ne montrent que certaines parties de la propriété. L'offre est valable sauf en cas de vente, retrait de vente, changement de prix ou d'autres conditions, sans préalable.