Torna alla lista

IMMOBILE COMMERCIALE/UFFICIO IN VENDITA - FONTVIEILLE

Fontvieille / Le Michelangelo

Specificazioni

Prezzo di vendita2 756 000 €

Tipologia di immobileUfficio

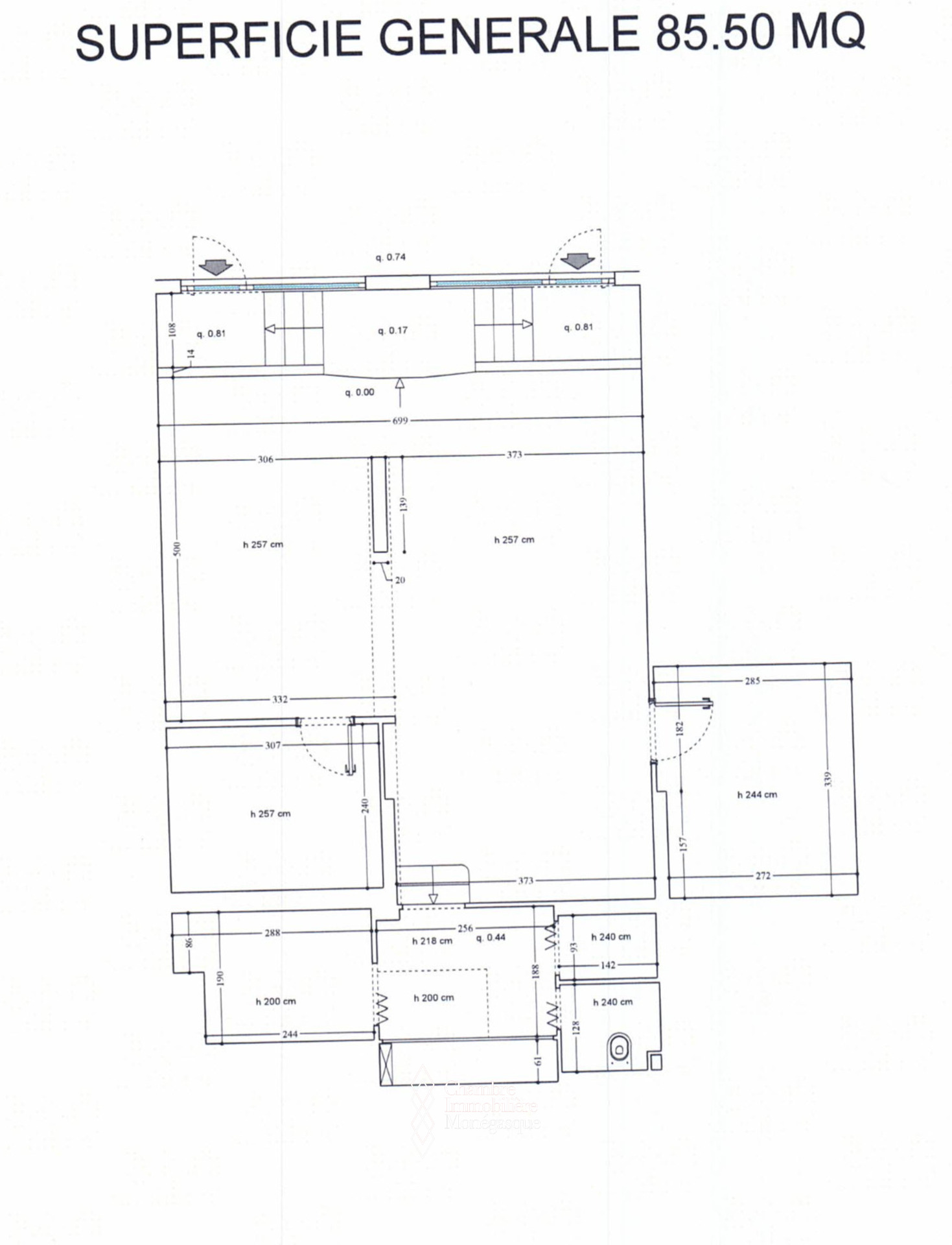
Area totale85.50 Mq

Scarica in formato PDF

Descrizione

Questa proprietà commerciale si trova nell'edificio Michelangelo a Fontvieille. Ha una grande finestra luminosa con doppio accesso, che fornisce un'eccellente luce naturale. Il layout comprende una grande stanza principale, due stanze laterali sul retro, un ripostiglio, un ripostiglio, un bagno e un grande ripostiglio. Attualmente l'attività commerciale è un salone di parrucchiere fino al 30/09/2026.

Marsan Immobilier Monaco

T. +377 93 25 01 01 info@marsanimmobiliermonaco.mc https://www.marsanimmobiliermonaco.mc Vedi tutte le proprietà

Galleria di foto

Questo documento non rappresenta un'offerta o un contratto. Tutte le misure, superfici e distanze sono approssimative. Le descrizioni e planimetrie sono date a titolo indicativo e la loro esattezza non è garantita. Le fotografie mostrano solo alcune parti della proprietà alla data in cui son state fatte. L'offerta di Vendita è valida salvo in caso di Vendita/affitto, ritiro dalla Vendita/affito o cambio del prezzo o altra condizione, senza avviso preliminare.