Torna alla lista

Raro ! Appartamento con grande terrazza situato a la Condamine

Condamine

contattare l'agenzia Groupe S.M.I.R.

Esclusività

Vendita

rif V-163

Specificazioni

Prezzo di vendita4 200 000 €

Tipologia di immobileAppartamento

N° di locali3

Camera(re)2

Bagno(i)2

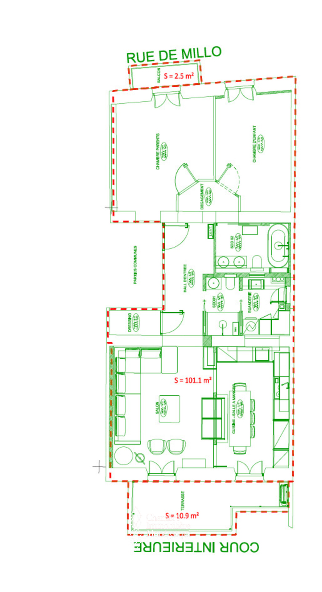
Area totale114.50 Mq

Zona terrazzo13.40 Mq

Piano2

Scarica in formato PDF

Descrizione

Scoprite questo spazioso appartamento, situato in una posizione ideale in un affascinante palazzo nel cuore del quartiere della Condamine, in Rue de Millo. Dispone di un'ampia terrazza di 13 m², che offre uno spazio esterno piacevole e tranquillo. L'appartamento è stato completamente ristrutturato. Situato in posizione ideale in Rue de Millo, è vicino a tutti i negozi e dal leggendario mercato di Place d'Armes. Questo appartamento è soggetto alle disposizioni della Legge 1235/1291.

Attualmente l'appartamento è composto da: ingresso, soggiorno con accesso ad una terrazza, cucina a vista sul soggiorno, due camere da letto (una con balcone), un bagno completo, un bagno con doccia e diversi spazi per riporre gli oggetti.
L'appartamento viene venduto con una cantina nell'edificio.

Groupe S.M.I.R.

T. +377 92 16 58 00 info@groupesmir.com http://www.groupesmir.com/ Vedi tutte le proprietà

Galleria di foto

Questo documento non rappresenta un'offerta o un contratto. Tutte le misure, superfici e distanze sono approssimative. Le descrizioni e planimetrie sono date a titolo indicativo e la loro esattezza non è garantita. Le fotografie mostrano solo alcune parti della proprietà alla data in cui son state fatte. L'offerta di Vendita è valida salvo in caso di Vendita/affitto, ritiro dalla Vendita/affito o cambio del prezzo o altra condizione, senza avviso preliminare.