Torna alla lista

Le Park Palace - 3 pièces - Carré d'Or

Carré d'or / Park Palace

contattare l'agenzia Monte-Carlo Sotheby's International Realty

Esclusività

Vendita

rif Park Palace 3P / MC2

Specificazioni

Prezzo di vendita12 950 000 €

Tipologia di immobileAppartamento

N° di locali3

Camera(re)2

Bagno(i)2

Parcheggi(o)1

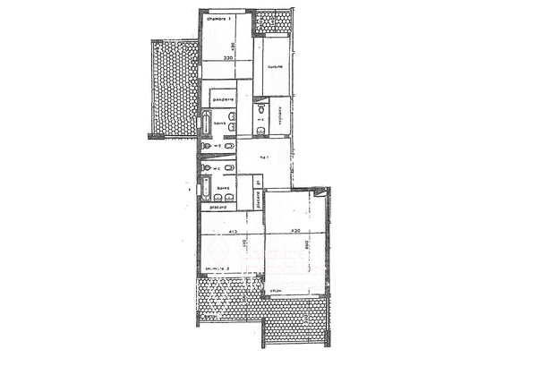
Area totale168.10 Mq

Zona terrazzo41.95 Mq

Scarica in formato PDF

Descrizione

Idéalement situé dans l'emblématique immeuble Park Palace, au cœur du prestigieux Carré d'Or à Monaco, cette résidence offre des prestations haut de gamme, incluant un service de conciergerie, une piscine et une salle de fitness. À proximité immédiate d'enseignes renommées, des restaurants raffinés et du célèbre Casino. Cet élégant appartement de 3 pièces dispose de deux chambres, de une salle de bain, une salle de douche ainsi que d’une cave et d’un parking. Il offre une vue exceptionnelle sur les jardins du Casino et la mer.

Une entrée, une cuisine avec balcon, un séjour ouvert sur la terrasses principale avec vue sur les jardins du casino et la mer, une chambre de maître avec salle de bain et un accès à la terrasse principale, une seconde chambre avec dressing, salle de douche et terrasse avec accès privée, une toilette invités. 

Monte-Carlo Sotheby's International Realty

T. +377 93 25 37 27 info@montecarlo-sothebysrealty.com https://www.montecarlo-sothebysrealty.com Vedi tutte le proprietà

Galleria di foto

Questo documento non rappresenta un'offerta o un contratto. Tutte le misure, superfici e distanze sono approssimative. Le descrizioni e planimetrie sono date a titolo indicativo e la loro esattezza non è garantita. Le fotografie mostrano solo alcune parti della proprietà alla data in cui son state fatte. L'offerta di Vendita è valida salvo in caso di Vendita/affitto, ritiro dalla Vendita/affito o cambio del prezzo o altra condizione, senza avviso preliminare.