Torna alla lista

Locale commerciale con finestra

Monte-Carlo

Specificazioni

Prezzo di vendita195 000 €

Tipologia di immobileCessione di diritti all'affito

Scarica in formato PDF

Descrizione

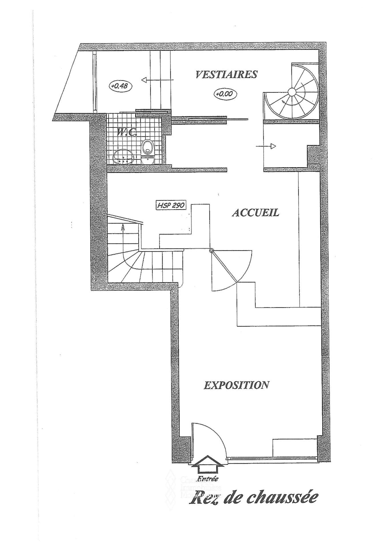
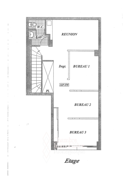
uno spazio commerciale di tipo triplex idealmente situato in Avenue de Grande-Bretagne.
- Piano terra : Superficie di circa 50 m² che si affaccia sulla strada con un'ampia vetrata, che offre un'ottima visibilità.
- Livello inferiore : uno spazio di 30 m², perfetto per lo stoccaggio o l'uso del guardaroba, che include anche una toilette.
- Primo piano : Una superficie di circa 65 m², luminoso, con una finestra che offre una vista mozzafiato sul mare. Affitta tutti i negozi tranne la ristorazione.
Locazione commerciale  - Affitto mensile attuale: 4.422 € + 888 € di spese.

Exclusive Estate Monaco

T. +377 97 98 15 49 info@exclusive-estate.mc https://www.exclusive-estate.mc Vedi tutte le proprietà

Galleria di foto

Questo documento non rappresenta un'offerta o un contratto. Tutte le misure, superfici e distanze sono approssimative. Le descrizioni e planimetrie sono date a titolo indicativo e la loro esattezza non è garantita. Le fotografie mostrano solo alcune parti della proprietà alla data in cui son state fatte. L'offerta di Vendita è valida salvo in caso di Vendita/affitto, ritiro dalla Vendita/affito o cambio del prezzo o altra condizione, senza avviso preliminare.