Torna alla lista

MONACO CARRÉ D'OR 2 CAMERE MISTO CON CANTINA

Carré d'or / Les Acanthes

contattare l'agenzia Blu Immobilier

Esclusività

Vendita

rif ACANTHES 2P 6B sans

Specificazioni

Prezzo di vendita3 900 000 €

Tipologia di immobileAppartamento

N° di locali2

Area totale72 Mq

Zona terrazzo14 Mq

Piano6

Scarica in formato PDF

Descrizione

Les Acanthes è una residenza di lusso situata nel Carré d'Or di Monaco. Due accessi permettono di raggiungere le spiagge del Larvotto o la Place du Casino (Amazonico, Café de Paris, Hotel de Paris), a piedi in pochi minuti. Su un lato dell'edificio si trova il suo ingresso principale, dotato di una reception con portineria, situato a pochi passi dal Centro Commerciale Metropole. Per quanto riguarda l'uscita su rue du Portier, ci troviamo tra i famosi ristoranti (Cipriani, Robuchon, Piazza, Zefferino, Pulcinella, Trinity). L'edificio beneficia di aria condizionata reversibile, riscaldamento. Un vantaggio raro: l'uso misto dell'edificio offre flessibilità per uso residenziale o uffici.

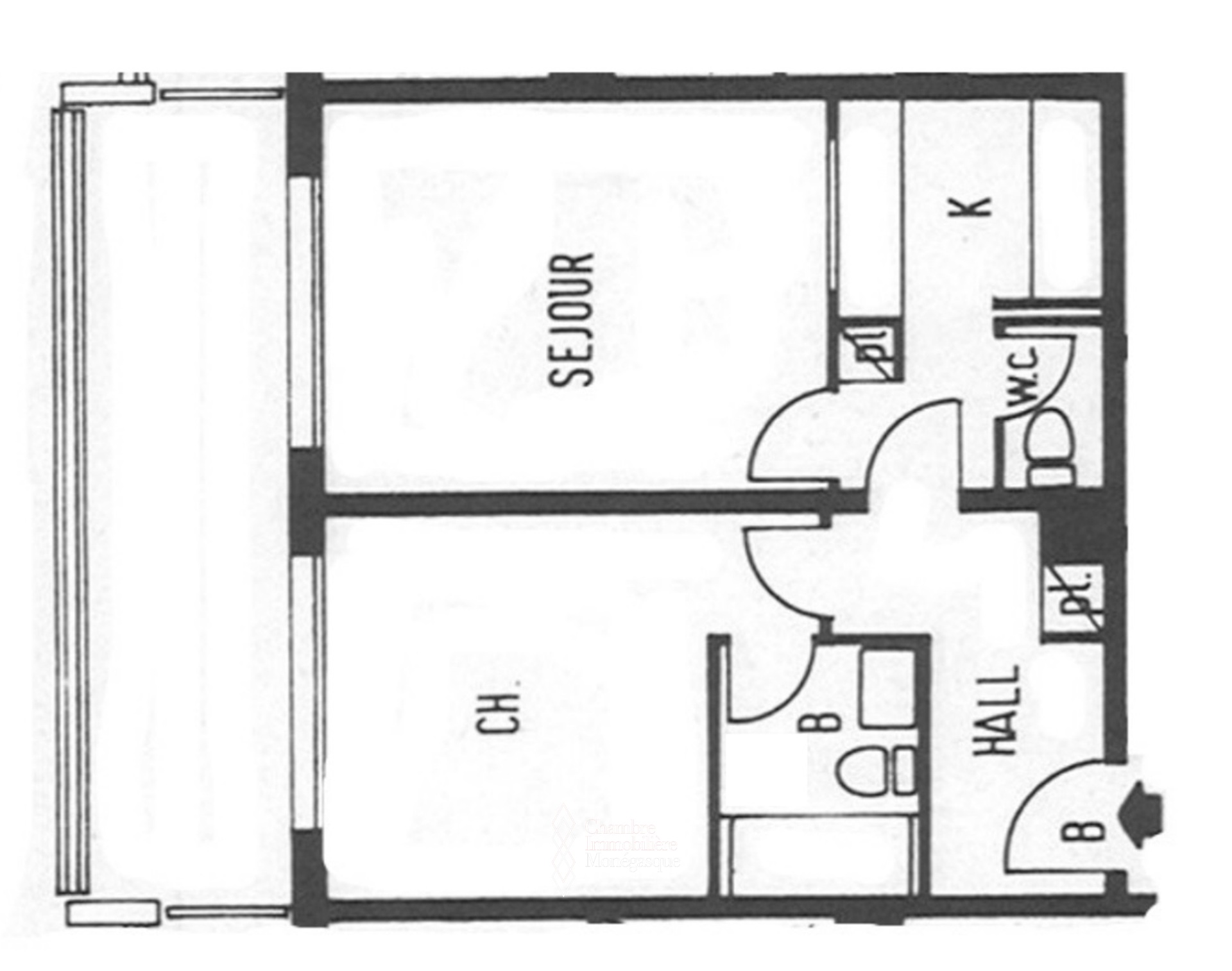
L'appartamento di 2 locali, molto funzionale, ha un ingresso con armadi, un soggiorno, una cucina attrezzata indipendente, un bagno per gli ospiti, una camera da letto con bagno privato con doccia e un ampio balcone accessibile da entrambe le stanze. Le finiture meticolose includono pavimenti in marmo, pavimenti in parquet sul balcone e porte in legno. Un sacco di spazio di archiviazione è incorporato. Ristrutturato e arredato, pronto per essere abitato. Completa la proprietà anche una cantina numero 251 al secondo piano seminterrato e un parcheggio numero 114 al primo piano interrato. Non perdete questa opportunità unica nel cuore di Monaco.

Blu Immobilier

T. +33 6 80 86 18 23 blu@blu.mc https://www.blu.mc/ Vedi tutte le proprietà

Galleria di foto

Questo documento non rappresenta un'offerta o un contratto. Tutte le misure, superfici e distanze sono approssimative. Le descrizioni e planimetrie sono date a titolo indicativo e la loro esattezza non è garantita. Le fotografie mostrano solo alcune parti della proprietà alla data in cui son state fatte. L'offerta di Vendita è valida salvo in caso di Vendita/affitto, ritiro dalla Vendita/affito o cambio del prezzo o altra condizione, senza avviso preliminare.