Appartamenti
Tutti i tipi Appartamento Locale di servizio Duplex Loft Attico Piano terraCase
Tutti i tipi Casa VillaParcheggie / Cantine
Tutti i tipi Cantina Box Autorimessa ParcheggioVendite Professionali
Tutti i tipi Ufficio Locali Cessione di diritti all'affito Cessione di esercizi commerciali Pareti commercialiQuartieri
Anse du Portier Carré d'or Condamine Fontvieille Jardin exotique La Rousse - Saint Roman Larvotto Monaco-Ville Moneghetti Monte-Carlo PortPrezzo
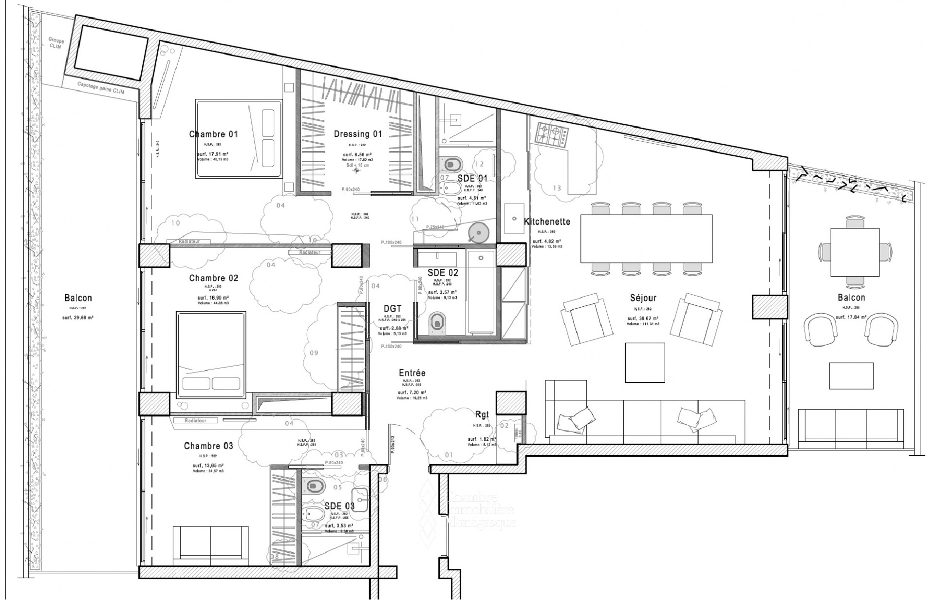
Spazio vitale
Uso misto
Parcheggi(o)
Arredato














