Torna alla lista

MONTE - CARLO| CASABELLA | 3 LOCALI

Monte-Carlo / Le Casabella

contattare l'agenzia Monaco Properties

Esclusività

Vendita

rif VM0822-3_251118-1519

Specificazioni

Prezzo di vendita5 000 000 €

Tipologia di immobileAppartamento

N° di locali3

Camera(re)2

Bagno(i)2

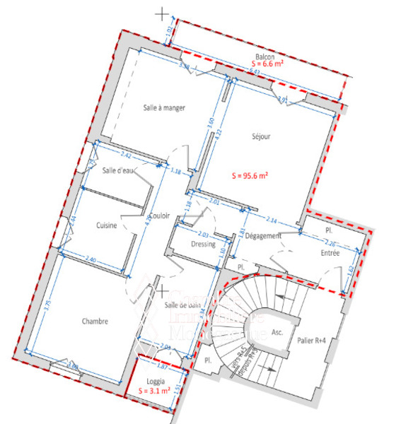
Area totale105.30 Mq

Zona terrazzo9.70 Mq

Piano4

Scarica in formato PDF

Descrizione

Vendita con riserva del diritto d'uso e di abitazione; Bellissimo appartamento situato in una residenza borghese. Lavori da pianificare, investitore ideale.

Casabella - Situato in una elegante residenza borghese a Monaco, questo appartamento attraversante si trova lungo il Boulevard des Moulins, offrendo facile accesso a tutte le comodità, a Place du Casino e alle spiagge di Larvotto. Gode di una piacevole vista su Place des Moulins e sul mare. L'appartamento, che può essere trasformato in un quattro vani, si distingue per i suoi ampi spazi e comprende:
- Ingresso
- Soggiorno
- Sala da pranzo
- Cucina
- Toilette per ospiti
- Camera matrimoniale
- Bagno
- Garage chiuso nel parcheggio pubblico di Place des Moulins, disponibile per un supplemento di 500.000 €
Attualmente è occupato da una signora di 95 anni.

Monaco Properties

T. +377 97 97 33 97 info@mpmonaco.com https://www.monacoproperties.mc Vedi tutte le proprietà

Galleria di foto

Questo documento non rappresenta un'offerta o un contratto. Tutte le misure, superfici e distanze sono approssimative. Le descrizioni e planimetrie sono date a titolo indicativo e la loro esattezza non è garantita. Le fotografie mostrano solo alcune parti della proprietà alla data in cui son state fatte. L'offerta di Vendita è valida salvo in caso di Vendita/affitto, ritiro dalla Vendita/affito o cambio del prezzo o altra condizione, senza avviso preliminare.