Torna alla lista

LAROUSSE | LA RADIEUSE | 2 STANZE

La Rousse - Saint Roman / La Radieuse

contattare l'agenzia Monaco Properties

Vendita

rif VMO-0724-P_251217-10

Specificazioni

Prezzo di vendita3 200 000 €

Tipologia di immobileAppartamento

N° di locali2

Camera(re)1

Bagno(i)1

Area totale60 Mq

Zona terrazzo4 Mq

Piano4

Scarica in formato PDF

Descrizione

La radieuse - In un grazioso residence borghese vicino alle spiagge del Larvotto e a tutti i servizi, luminoso appartamento splendidamente ristrutturato con gusto e materiali di qualità. Venduto arredato con ampi spazi di stoccaggio e cucina attrezzata. 
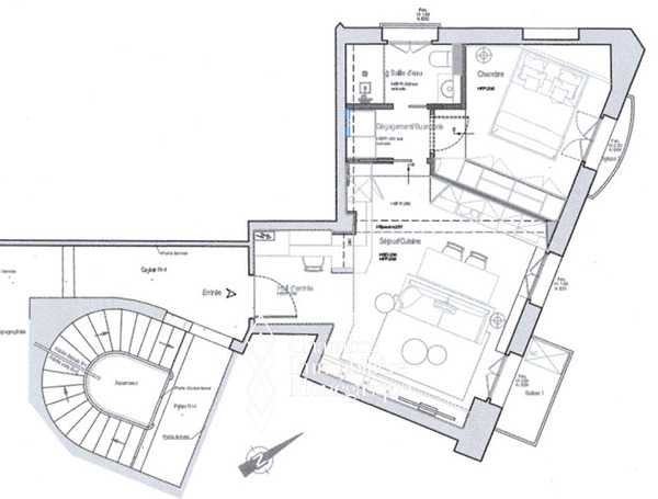
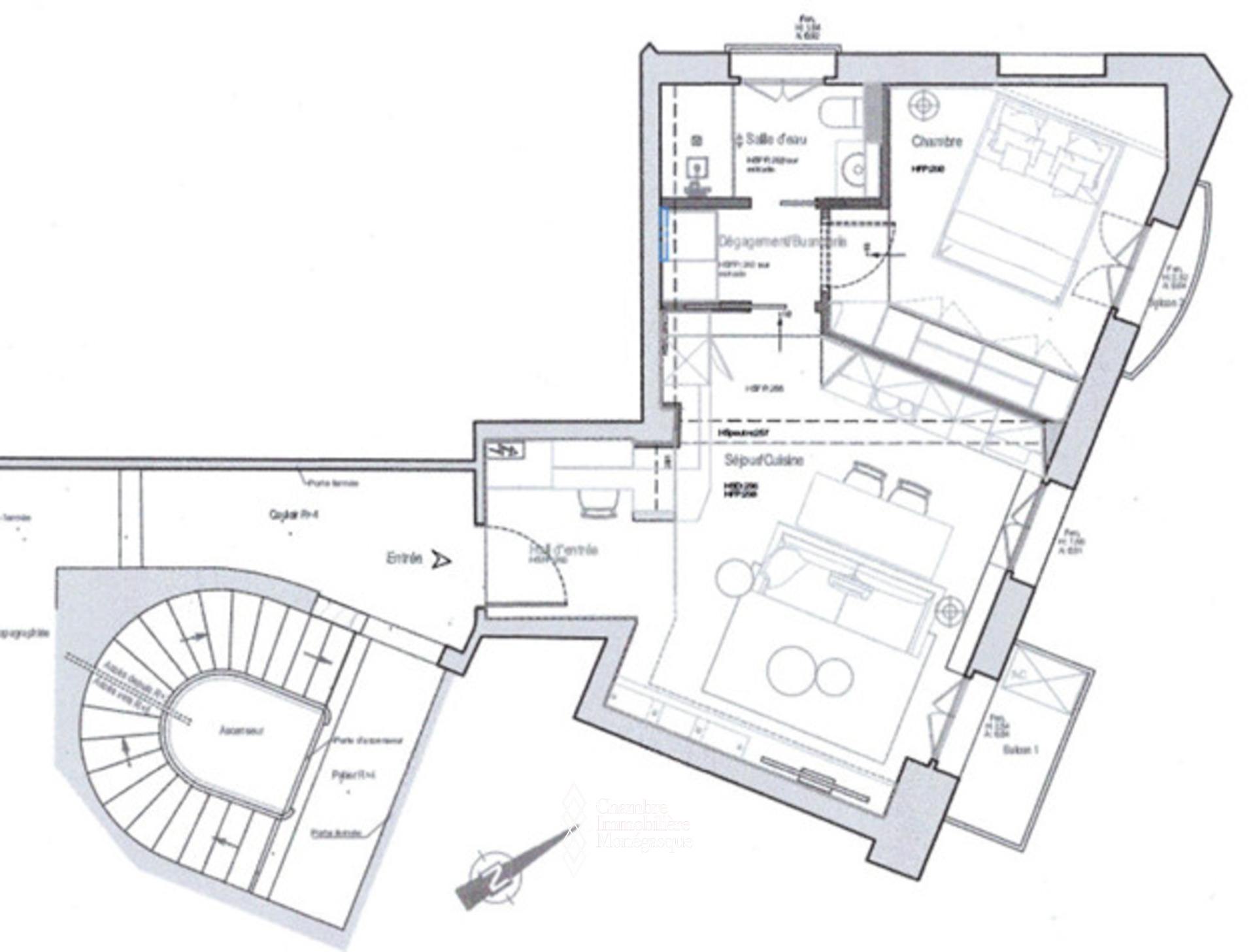
L'appartamento è composto da 
- ingresso con zona studio
- soggiorno con balcone e cucina americana
- bagno 
- camera da letto con balcone 
Possibilità di affittare un parcheggio nelle vicinanze 

Monaco Properties

T. +377 97 97 33 97 info@mpmonaco.com https://www.monacoproperties.mc Vedi tutte le proprietà

Galleria di foto

Questo documento non rappresenta un'offerta o un contratto. Tutte le misure, superfici e distanze sono approssimative. Le descrizioni e planimetrie sono date a titolo indicativo e la loro esattezza non è garantita. Le fotografie mostrano solo alcune parti della proprietà alla data in cui son state fatte. L'offerta di Vendita è valida salvo in caso di Vendita/affitto, ritiro dalla Vendita/affito o cambio del prezzo o altra condizione, senza avviso preliminare.