Torna alla lista

FONTVIEILLE | ROSA MARIS | 2 STANZE

Fontvieille / Rosa Maris

contattare l'agenzia Monaco Properties

Vendita

rif VMO-1024-4_260417-09

Specificazioni

Prezzo di vendita4 950 000 €

Tipologia di immobileAppartamento

N° di locali2

Camera(re)1

Parcheggi(o)1

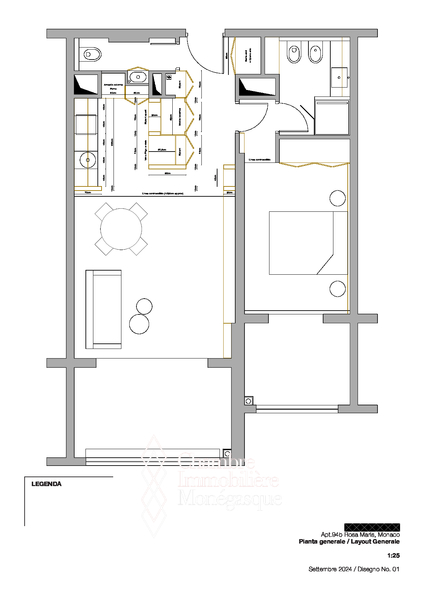
Area totale70 Mq

Zona terrazzo16 Mq

Scarica in formato PDF

Descrizione

Vivi l'eccezione con questo bilocale, situato nella prestigiosa residenza ROSA MARIS, che offre una vista maestosa sui giardini e sul mare. Uno spazio di 70 m² da personalizzare, ideale per creare la tua oasi di serenità a Monaco!

ROSA MARIS: Scoprite questo appartamento di 2 locali completamente ristrutturato nella prestigiosa residenza ROSA MARIS, idealmente situato al 9° piano e con vista mozzafiato sui giardini e sul Mar Mediterraneo.
Con una superficie totale di 70 m², la proprietà dispone di 54 m² di raffinato spazio abitativo e 16 m² di terrazze, perfettamente progettate per godere dello stile di vita unico di Monaco.
Questo appartamento chiavi in mano combina eleganza moderna, comfort e tranquillità, creando un rifugio ideale nel cuore del Principato. Due ampie terrazze vi invitano ad assaporare l'atmosfera mediterranea e l'ambiente sereno del residence.
Per ulteriore comodità, l'appartamento dispone di un posto auto privato nel 3° seminterrato dell'edificio.
Una vera e propria oasi di pace da scoprire, che combina comfort moderni e ambienti incantevoli.

Monaco Properties

T. +377 97 97 33 97 info@mpmonaco.com https://www.monacoproperties.mc Vedi tutte le proprietà

Galleria di foto

Questo documento non rappresenta un'offerta o un contratto. Tutte le misure, superfici e distanze sono approssimative. Le descrizioni e planimetrie sono date a titolo indicativo e la loro esattezza non è garantita. Le fotografie mostrano solo alcune parti della proprietà alla data in cui son state fatte. L'offerta di Vendita è valida salvo in caso di Vendita/affitto, ritiro dalla Vendita/affito o cambio del prezzo o altra condizione, senza avviso preliminare.