Torna alla lista

EXCLUSIVITE - BUREAUX PATIO PALACE

Jardin exotique / Patio Palace

contattare l'agenzia Agence de la Gare

Esclusività

Affitto

rif L1710202501

Specificazioni

L'affitto6 200 € / mese

Spese300 € / mese

Tipologia di immobileUfficio

Bagno(i)2

Parcheggi(o)2

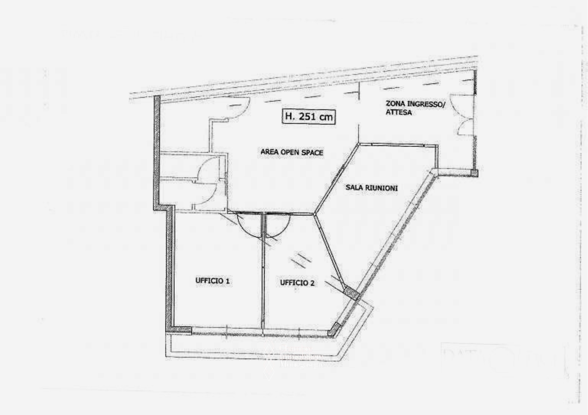
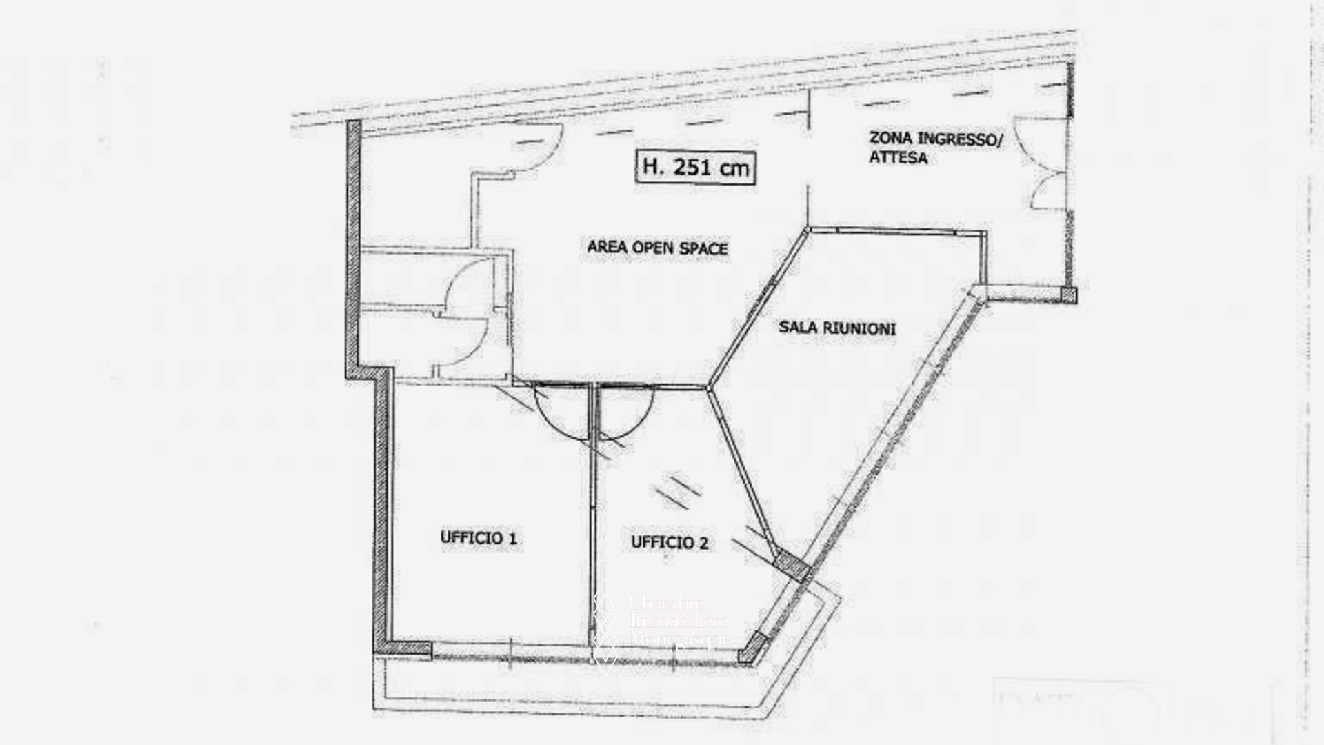
Area totale146 Mq

Piano7

Scarica in formato PDF

Descrizione

Vicino a tutti i servizi (fermata dell'autobus, supermercato, farmacia, parcheggio pubblico) questo ufficio climatizzato è composto da :
- Un ingresso con ampi ripostigli
- Uno spazio aperto
- tre uffici indipendenti
- Un angolo cottura separato
- Servizi igienici per uomini e donne

Attrezzatura:
- Internet in fibra
-Climatizzazione
- 2 posti auto
 

Agence de la Gare

T. +377 93 30 22 36 info@agencegaremonaco.com http://www.agencegaremonaco.com/ Vedi tutte le proprietà

Galleria di foto

Questo documento non rappresenta un'offerta o un contratto. Tutte le misure, superfici e distanze sono approssimative. Le descrizioni e planimetrie sono date a titolo indicativo e la loro esattezza non è garantita. Le fotografie mostrano solo alcune parti della proprietà alla data in cui son state fatte. L'offerta di Vendita è valida salvo in caso di Vendita/affitto, ritiro dalla Vendita/affito o cambio del prezzo o altra condizione, senza avviso preliminare.