Torna alla lista

4 PIECES FAMILIAL PROCHE DES PLAGES

La Rousse - Saint Roman / Château Perigord II

Specificazioni

Prezzo di vendita6 850 000 €

Tipologia di immobileAppartamento

N° di locali4

Camera(re)2

Area totale126 Mq

Zona terrazzo20 Mq

Piano14

Scarica in formato PDF

Descrizione

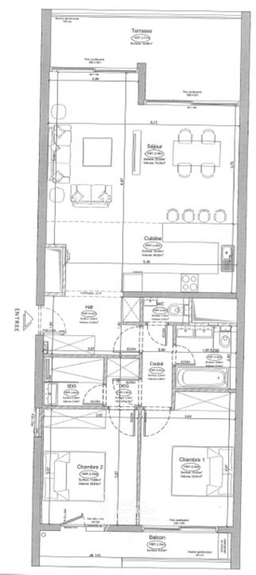
Beau 4 PIECES familial, entièrement rénové avec des matériaux de qualité, situé au sein d'une résidence de standing avec gardiennage 24h/24, proche du centre de la Principauté et des plages.
Il se compose de : hall d'entrée, double séjour en façade, côté mer, avec cuisine à l'américaine entièrement équipée, deux chambres côté collines, une salle de bains complète, une salle de douches complète, toilette invités.
Il jouit d'une loggia et d'un balcon d'une surface totale de 20 M2 avec vue sur la mer et Monaco.

Dotta Immobilier

T. +377 97 98 20 00 transaction@dotta.mc http://www.dotta.mc/ Vedi tutte le proprietà

Galleria di foto

Questo documento non rappresenta un'offerta o un contratto. Tutte le misure, superfici e distanze sono approssimative. Le descrizioni e planimetrie sono date a titolo indicativo e la loro esattezza non è garantita. Le fotografie mostrano solo alcune parti della proprietà alla data in cui son state fatte. L'offerta di Vendita è valida salvo in caso di Vendita/affitto, ritiro dalla Vendita/affito o cambio del prezzo o altra condizione, senza avviso preliminare.