Back to the list

CARRÉ D'OR / LE MONTAIGNE / STUDIO

Carré d'or / Le Montaigne B/C

Features

Selling price1 790 000 €

Type of propertyApartment

Nb of rooms1

Total area25 Sqm

Download PDF

Description

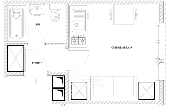
CARRE d' OR - In a prestigious  residence with caretaker 24/7, Studio completely renovated, bright and refined, a stone's throw from the Place du Casino.  This studio with a view of the courtyard and garden, consists of an entrance hall, a main room and an equipped bathroom. Currently rented 32,400 € / year for a profitability of about 2%.
Mixed use: residential or office 
Cellar in addition to  100,000€.

Coldwell Banker Etic Realty

T. +377 93 50 57 94 eticimmobilier@gmail.com https://www.eticimmobilier.com/ See all properties

Photo Gallery

This document does not form part of any offer or contract. All measurements, areas and distances are approximate. The information and plans contained herein are believed to be correct, however, their accuracy is not guaranteed. The photographs show only certain parts of the property at the time they were taken. This offer is subject to change of price or other conditions, without prior notice.