Back to the list

Office/commercial space for rent - Large storefront

Fontvieille / Titien

Features

Rental price5 340 € / month

Service charges500 € / month

Type of propertyOffice space

Nb of rooms1

Bedrooms(s)1

Total area63 Sqm

Download PDF

Description

Located in a peaceful area bordered by gardens, this space benefits from appreciable visibility thanks to a full-height window. Its location allows immediate access to shops, transport and restaurants, while offering a discreet and neat working environment.

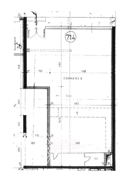
Description of this office
The space consists of a main room currently organized into three distinct areas, a small hallway and a separate toilet. Completely renovated, it has recent parquet flooring and a layout designed to optimize circulation and the use of volumes.
This place offers a pleasant professional environment, suitable for an activity wishing to combine calm, functionality and visibility.
 
 
 
 
 
 

Agence Continentale

T. +377 93 50 54 64 info@continentale.mc https://www.continentale.mc See all properties

Photo Gallery

This document does not form part of any offer or contract. All measurements, areas and distances are approximate. The information and plans contained herein are believed to be correct, however, their accuracy is not guaranteed. The photographs show only certain parts of the property at the time they were taken. This offer is subject to change of price or other conditions, without prior notice.