Back to the list

IDEAL WORKSPACE - LARGE OFFICE IN ROCAZUR

La Rousse - Saint Roman / Rocazur

Features

Rental price12 900 € / month

Service charges1 300 € / month

Type of propertyOffice space

Nb of rooms5

Bathroom(s)2

Parking(s)3

Total area229 Sqm

Floor1

Download PDF

Description

Spacious office offering an ideal professional environment. Conveniently located near bus stops, the office is within walking distance from restaurants, a supermarket, and a lift that connects it to Larvotto.

Excellent office located on the first floor of Rocazur in the quiet yet well-connected district of La Rousse - Saint-Roman.
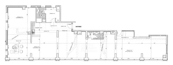
The property is composed of an entrance hall, a kitchenette with a coffee area, ample workspace, and separate toilets.
3 parking spaces complete the property.

Caroline Olds Real Estate

T. +377 93 25 86 66 caroline@carolineolds.com https://www.carolineolds.com/ See all properties

Photo Gallery

This document does not form part of any offer or contract. All measurements, areas and distances are approximate. The information and plans contained herein are believed to be correct, however, their accuracy is not guaranteed. The photographs show only certain parts of the property at the time they were taken. This offer is subject to change of price or other conditions, without prior notice.