Back to the list

Exceptional apartment - Memmo Center - Top floor with sea view

Fontvieille / Memmo Center

Features

Rental price70 000 € / month

Service charges9 200 € / month

Type of propertyPenthouse

Nb of rooms7

Bedrooms(s)5

Bathroom(s)5

Parking(s)4

Total area702 Sqm

Terrace area336 Sqm

Floor9

Download PDF

Description

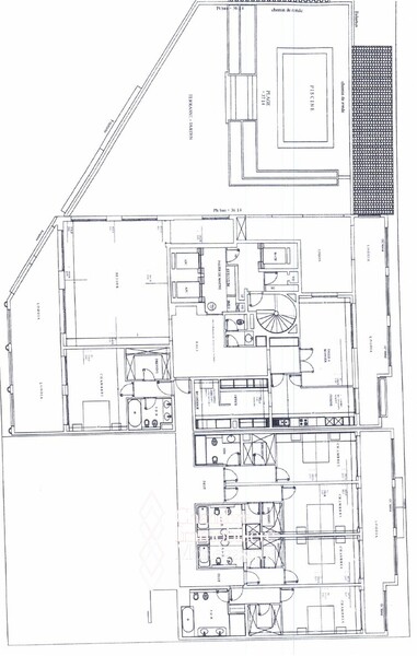
Located in the Fontvieille district, close to Cap d'Ail and the Stade Louis II, the marina and the Fontvieille shopping centre. This 7-room apartment of the highest standard is located on the top floor of a building with 24-hour concierge service, a gym, double exposure and views over the port of Cap d'Ail. It also features a private swimming pool on the terrace. This property will be available to rent from 1st of august 2026.

This splendid, exceptional flat with its own private landing comprises a spacious entrance hall with guest toilet, a vast living room opening onto a loggia, a dining room with access to two loggias, a fully-equipped separate kitchen with a pantry area and a laundry room, also with access to a loggia. The apartment's hallway leads to five magnificent bedrooms, each with its own dressing room and en suite bathroom, as well as access to the loggias and spectacular views.
The apartment has a large terrace with a private swimming pool.
A cellar and four parking spaces complete this property.

Groupe S.M.I.R.

T. +377 92 16 58 00 info@groupesmir.com http://www.groupesmir.com/ See all properties

Photo Gallery

This document does not form part of any offer or contract. All measurements, areas and distances are approximate. The information and plans contained herein are believed to be correct, however, their accuracy is not guaranteed. The photographs show only certain parts of the property at the time they were taken. This offer is subject to change of price or other conditions, without prior notice.