Retour à la liste

Bureaux/commerces polyvalents à vendre – Quartier Jardin Exotiqu

Jardin exotique / Les Ligures

contacter l'agence SL AGENCY

Vente

réf 86253687

Caractéristiques

Prix de vente5 900 000 €

Type de bienLocal

Nb de pièces6

Superf. totale250 m²

Télécharger en PDF

Description

Bureaux/commerces polyvalents à vendre – Quartier Jardin Exotique, Monaco Un quartier prestigieux aux portes de la France

Idéalement situé dans le quartier résidentiel du Jardin Exotique, cet espace bénéficie d’une adresse de standing, à proximité immédiate de la frontière française et parfaitement desservie par les axes de circulation. La résidence des Ligures est l’une des plus réputées de Monaco, offrant un cadre rare avec conciergerie 24h/24, piscine, salle de sport, tennis et parc paysager.

Une surface généreuse et modulable

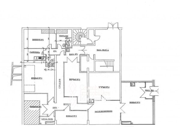
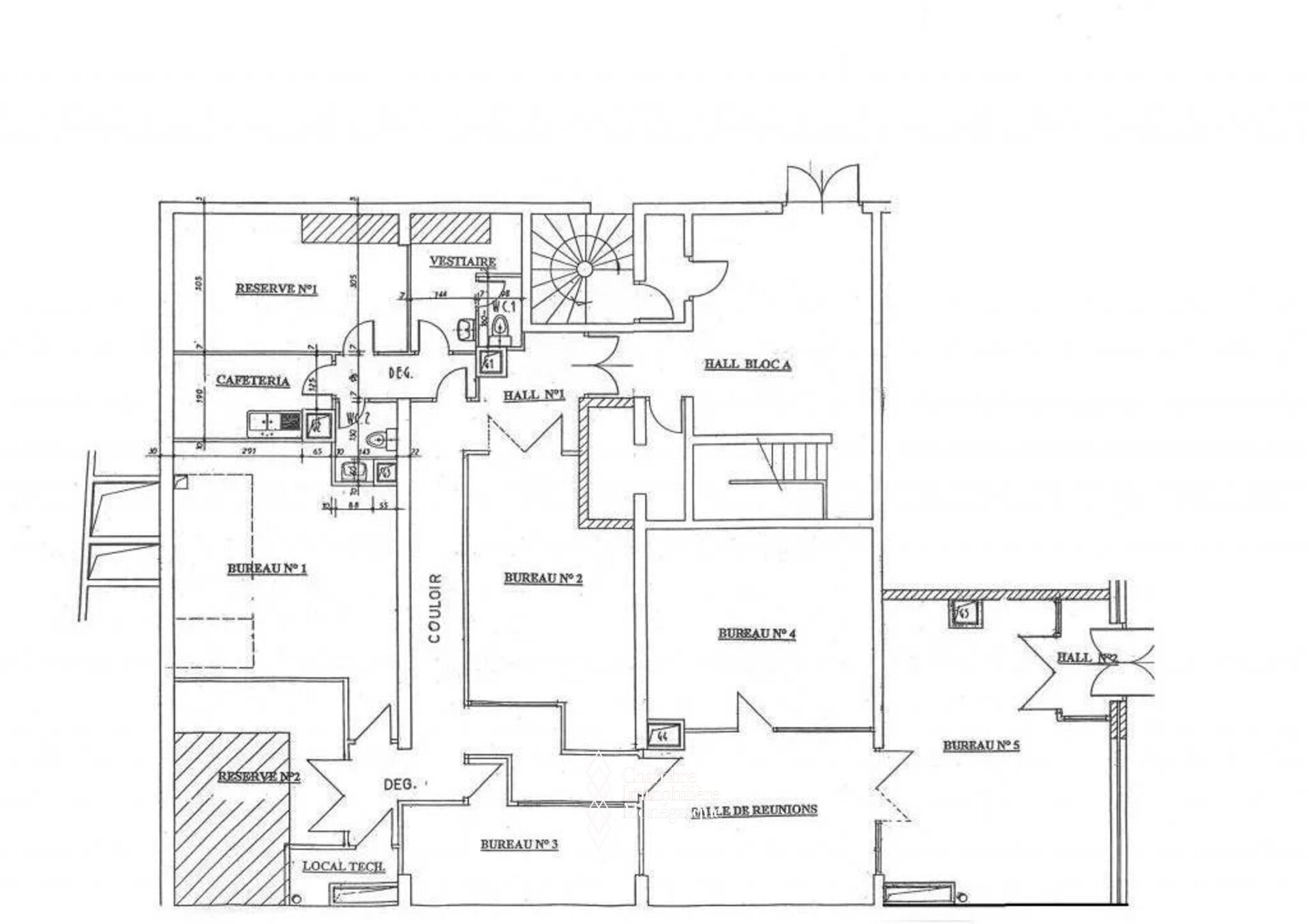
Ce bien de 250 m² offre de multiples possibilités d’aménagement :

actuellement organisé en bureaux avec réception, 5 bureaux spacieux, salle de réunion, grande réserve, petite cuisine, sanitaires hommes et femmes, vestiaires et local technique,

cloisons amovibles permettant une configuration flexible,

climatisation réversible et VMC pour un confort optimal.

Grâce à ses deux entrées indépendantes, l’espace peut être divisé en deux lots distincts, permettant d’accueillir deux activités différentes. Selon les aménagements, il est possible de créer jusqu’à six espaces séparés pour domicilier plusieurs sociétés.

Un investissement stratégique

Polyvalent, ce bien s’adapte aussi bien à un usage de bureaux qu’à une activité commerciale (boutique, galerie d’art, showroom). Sa situation, ses volumes et son environnement haut de gamme en font une opportunité rare sur le marché immobilier monégasque.

Prix de vente : 5 900 000 euros

Contactez-nous dès aujourd’hui pour organiser une visite et découvrir le potentiel de ces bureaux/commerces dans le quartier du Jardin Exotique à Monaco.

SL AGENCY

T. +377 999 093 60 contact@slamonaco.com https://www.slamonaco.com/ Voir tous les biens

Galerie Photos

Ce document ne fait partie d'aucune offre ou contrat. Toutes mesures, surfaces et distances sont approximatives. Le descriptif et les plans ne sont donnés qu'à titre indicatif et leur exactitude n'est pas garantie. Les photographies ne montrent que certaines parties de la propriété. L'offre est valable sauf en cas de vente, retrait de vente, changement de prix ou d'autres conditions, sans préalable.